Lors de la construction de tout système d'ingénierie, le développeur doit rechercher des compromis entre des schémas de travail efficaces et le coût des travaux. Ainsi, lors de la pose d'un système d'égout dans une maison privée, à savoir le calcul de la profondeur de la pose, il est nécessaire de prendre en compte des nuances telles que le niveau de gel du sol dans une zone donnée, la pente du relief, les eaux usées régime (la présence et le nombre de virages), le coût des travaux de terrain. L'orientation uniquement par des documents normatifs ne donne pas toujours le résultat souhaité. Alors, comment déterminer correctement à quelle profondeur le système d'égout fonctionnera parfaitement, tout en nécessitant des coûts d'installation et de maintenance minimes à l'avenir ?
Pourquoi ce point est-il si important
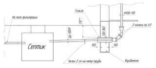
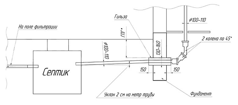
Pour éviter le bouchage inutile des canalisations, il est recommandé d'aménager le moins de coudes possible et de respecter la pente préconisée des canalisations, ce qui permettra aux déchets de passer facilement d'eux-mêmes. Il est recommandé d'éviter autant que possible les coudes et les tuyaux vont directement à l'installation de traitement. Mais, comme le montre la pratique, ce n'est pas toujours réaliste.
Noter. S'il est impossible d'éviter les coudes, il est recommandé de faire des puits au niveau des joints. Cela permettra, si nécessaire, d'accéder aux joints et de les nettoyer.
Les normes de profondeur et ce qui les affecte
Pour ce faire, vous devez vous familiariser avec les normes établies. Ces normes sont contenues dans le document SNiP 2.01.01.82. C'est ici que vous pouvez trouver une carte montrant la profondeur de gel pour chaque région de l'État.
Ainsi, grâce à cette carte, on peut voir que dans la région de Moscou, le sol gèle à une profondeur de 1,4 mètre, tandis que Sotchi et d'autres régions du sud n'ont que 0,8 mètre de profondeur.
Il est à noter que ces normes sont davantage appliquées pour les gros objets, alors que les structures privées nécessitent des calculs différents. Lors de la pose d'égouts pour le logement, des systèmes gravitaires sont principalement prévus, pour le fonctionnement desquels un certain niveau d'inclinaison est requis:
- avec un diamètre de tuyau allant jusqu'à 50 mm - la pente selon le document réglementaire doit être de 3 cm par mètre;
- avec un diamètre de tuyau supérieur à 50 mm - 2 cm pour chaque mètre courant.
Si ces normes ne sont pas respectées, le propriétaire de la maison peut être confronté aux problèmes suivants : avec une faible pente, les déchets passeront trop lentement, ce qui peut entraîner le colmatage des canalisations, et avec une pente plus importante, les débits seront trop rapide, ce qui affectera la durée de vie du système d'égouts.
Un autre point important lors de la prise en compte du niveau de profondeur est le type de structure qui sera à l'extrémité du pipeline : donc plus les tuyaux sont situés en profondeur, plus une fosse de fondation sera nécessaire. Il n'est pas recommandé d'approfondir le récipient - le couvercle doit être au niveau du sol. Si vous ne respectez pas cette condition, vous devrez alors faire une grande gorge pour la fosse septique.
Noter.Il convient de garder à l'esprit que la structure peut tomber en panne et nécessiter des réparations, et que le système profondément posé rend son accès difficile, surtout pendant les périodes hivernales.
Compte tenu de ces nuances, lors de la pose d'un système d'égout dans une maison privée, vous ne pouvez pas vous fier uniquement à la profondeur de gel du sol.De plus, il existe des arguments qui vous permettent de poser des tuyaux légèrement au-dessus de ce niveau:
- Les drains qui traversent les tuyaux sont à température ambiante, et dans certains cas même plus élevés. Cela permet d'éliminer le givre qui se forme à l'intérieur du tuyau.
- Si le système d'égouts n'est pas utilisé pendant un certain temps, les tuyaux seront vides, ce qui signifie qu'il n'y a rien à geler.
- Dans une fosse septique, de la chaleur est générée lors du traitement et de la décroissance des eaux usées, qui pénètrent dans les tuyaux de drainage.
Sur cette base, il est possible de retirer le tuyau de la maison légèrement plus haut que le niveau de gel du sol spécifié dans SNiP 2.01.01.82, puis de se laisser guider par l'angle d'inclinaison et la profondeur de la station d'épuration.
Exemple de calcul
Ainsi, les tuyaux de la région de Moscou peuvent être posés à une profondeur de 1,1 mètre. Mais, si l'on suppose que le sceptique est à une distance de 20 mètres de la maison, étant donné le niveau de pente optimal, qui est de 2 cm dans ce cas, il est clair que le tuyau d'arrivée sur la fosse septique doit être situé à une profondeur de 1,5 mètre (à condition que le relief soit régulier)...
Il est également pris en compte que les travaux de terrassement ont leur propre coût et leur propre période de mise en œuvre. Dans ce cas, il est peu pratique de poser des tuyaux selon les normes de gel des sols. Ainsi, pour les résidents du centre de la Russie, il suffit de poser des tuyaux à une profondeur de 70 cm, car même dans ce cas, le système fonctionnera normalement.
De plus, de nombreuses personnes les isolent immédiatement lors de la pose des tuyaux, ce qui leur permet d'augmenter leur durée de vie, grâce à la protection contre l'influence extérieure du sol dans lequel se trouve le système d'égouts, et également de maintenir la température des drains lorsqu'ils se déplacer dans les tuyaux.
Conclusion
La profondeur d'installation des systèmes d'égout dépend de nombreux facteurs. En la matière, il n'est pas raisonnable de se laisser guider uniquement par des calculs à sec selon les documents réglementaires. Cela peut entraîner des coûts d'installation supplémentaires et ne pas augmenter l'efficacité du système d'égouts. Lors de l'installation d'un système d'égout dans une maison privée, il est beaucoup plus important de déterminer la profondeur à laquelle les drains dans les tuyaux ne gèleront pas et le coût de l'excavation lors de l'installation. De plus, plus les tuyaux sont situés en profondeur, plus il sera difficile d'y accéder s'il est nécessaire de remplacer ou de réparer des éléments du système d'ingénierie.











