Le dispositif d'assainissement interne et externe doit être conforme aux normes établies. Dans le cas contraire, les drains ne pourront pas être acheminés vers la ligne principale ou le récepteur par gravité. Pour assurer le fonctionnement à écoulement libre du collecteur, lors de son installation, le débit des tuyaux d'égout, leur section, leur pente et leur plénitude sont pris en compte.
- L'importance de faire des calculs corrects lors de la conception d'un système d'égouts
- Types de calculs de base
- Pente de canalisation d'égout
- Calcul de la section des tuyaux
- Calcul de remplissage du collecteur
- Calcul du débit des tuyaux
- Détermination des paramètres effectifs des égouts pluviaux
- Calcul de l'assainissement externe
- Calcul de l'assainissement interne
L'importance de faire des calculs corrects lors de la conception d'un système d'égouts
Pour calculer tous les paramètres, le volume estimé d'effluents est pris comme donnée initiale.
Types de calculs de base
Lors de l'exécution des calculs, les données du SNiP 2.04.03-85 « Eaux usées. Réseaux et structures externes ", ainsi que les recommandations de SP 40-102-2000" Conception et installation de canalisations pour les systèmes d'approvisionnement en eau et d'assainissement en matériaux polymères. Exigences générales".
Pente de canalisation d'égout

La pente est responsable du fonctionnement à écoulement libre du système et de l'évacuation sans entrave des drains dans le récepteur. Les tableaux SNiP indiquent les pentes minimales recommandées pour chaque diamètre de tuyau :
- section 110 mm - 1 cm pour chaque mètre courant du collecteur;
- diamètre 160 mm - 0,8 cm par mètre;
- section 220 mm - 0,7 cm par mètre de longueur de collecteur.
Pour la partie intérieure de la communication, une pente de 1,5 à 2 cm est respectée pour chaque mètre linéaire.
S'il est nécessaire de calculer la pente du collecteur à l'aide de la formule, utilisez les éléments suivants : d x coefficient, où d est la section transversale du pipeline et le coefficient correspond aux valeurs suivantes :
- 160 — 0,6;
- 220 — 0,7;
- 500 mm - 1 ;
- 600-800 — 1,1;
- 1000-1200 mm - 1.3.
La pente est faite vers l'autoroute centrale ou la fosse septique / puisard de cour.
Calcul de la section des tuyaux
Pour poser des tuyaux du diamètre requis, vous pouvez utiliser les données SNiP. Les valeurs recommandées ressemblent à ceci :
- la partie intérieure du système d'égout de tous les appareils de plomberie - 50 mm;
- tuyau de toilette - 110 mm;
- contremarche publique - 110-160 mm;
- la partie extérieure du système d'égouts - 160-220 mm (pour le secteur privé et un immeuble d'appartements);
- autoroute centrale et entreprises industrielles - à partir de 500 mm.
Avec la section correcte du collecteur, le remplissage du tuyau sera d'environ 0,3 à 0,5 de son diamètre total.
Calcul de remplissage du collecteur
Un exemple de calcul du niveau de remplissage d'une canalisation d'égout dans le secteur privé : pour les données initiales, le niveau de remplissage du collecteur est pris à 60 mm près, tandis que la section du tube est de 110 mm. Selon la formule ci-dessus, on obtient 60/110 et 0,55. La valeur est correcte.
Calcul du débit des tuyaux
Au moment de la conception du système, le débit du pipeline doit être calculé - les coûts estimés des eaux usées sont déterminés. Ce paramètre est calculé par rapport au jour, aux heures et aux secondes, en fonction de la destination du bâtiment (résidentiel, commercial, etc.). Le deuxième débit d'eaux usées est calculé en litres, pour les données journalières et horaires est calculé en m3.
Données pour les coûts moyens :
- Qcp.jour = n · Nr / 1000 m³ / jour ;
- Qcp.heure = p · Nr / (24 · 1000) m³ / heure ;
- qav.sec = p · Nr / (24 · 3600) l / sec.
Où:
- n - taux moyens d'évacuation des eaux usées pour 1 habitant (en litres);
- Nр - nombre estimé d'habitants.
Pour les frais maximum :
- Qmax.jour = Qcp.jour · kjour = n · Nr · kjour / 1000 m³ / jour ;
- Qmax.heure = p1 · Nr · ktot / (24 · 1000) m³ / heure ;
- qmax sec = n1 Nr ktot / (24 3600) l / sec.
Où k sont les coefficients d'irrégularité : kday - journalier, ktot - total.
Pour déterminer le débit maximal du collecteur, utilisez la formule : q = aXv, où la valeur de a est la surface de la zone de libre écoulement, et v est le taux de transport des déchets.
8 m / s (métal) et jusqu'à 4 m / s (béton, plastique) sont considérés comme la norme des vitesses maximales pour chaque type de tuyaux (matériau de fabrication). Si la vitesse s'avère effectivement plus élevée, il faut l'éteindre en tournant le système ou en installant des puits de chute.
Tous les calculs hydrauliques doivent être effectués séquentiellement. Cependant, le plus souvent, les maîtres n'utilisent pas de formules pour les calculs, mais les données fournies dans SNiP (sous forme de tableaux) ou utilisent une calculatrice en ligne.
Détermination des paramètres effectifs des égouts pluviaux
- taux de précipitation annuel pour la région;
- la superficie de l'objet desservi ;
- type de revêtement (béton, terre, tuiles);
- propriétés du sol sur le site ;
- la masse de l'eau de pluie drainée.
Toutes les données, à l'exception du dernier élément, proviennent du service géodésique local. A partir des informations reçues, les gouttières sont sélectionnées en fonction de leur débit. Par exemple, calculons les données sur les plateaux d'eaux pluviales à l'aide de la formule : Q = q20 ∙ P φ φ
Valeurs:
- Q est le volume annuel moyen des eaux pluviales dans la région ;
- q20 - coefficient pour la région;
- P est la surface de l'objet à partir de laquelle l'eau sera déversée;
- φ - coefficient d'absorption d'eau pour différents types de matériaux.
Après avoir déterminé la capacité du bac par cette formule, les gouttières sont sélectionnées en fonction de leurs caractéristiques techniques. En règle générale, ce paramètre est indiqué sur le produit.
Calcul de l'assainissement externe
Pour concevoir la partie extérieure du collecteur, les données suivantes sont calculées :
- La longueur de la communication entre la sortie de la maison et le raccordement à une fosse septique ou à une autoroute centrale.
- Diamètre des tuyaux (pour la construction privée, des tubes d'une section de 110, 160 ou 220 mm sont utilisés).
- Volume de déchets. La norme est de 2 cubes par personne et par mois.
- La présence de virages et de puits de chute le long de la communication.
Pour le dispositif d'un système gravitaire, une pente est observée. Si, en raison des particularités du relief, une section de pression du système d'égout est montée, un caisson spécial est monté pour la pompe fécale et un siphon est disposé. Il protégera la section du système des effets des températures inférieures à zéro et de la stagnation des masses fécales.
Calcul de l'assainissement interne
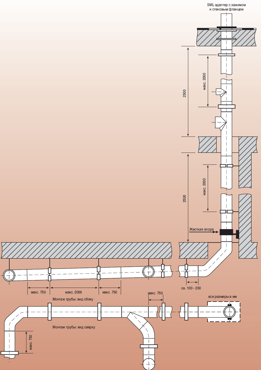
Pour le système de drainage interne, le nombre de tuyaux requis est calculé. Le diagramme montre les sections du système d'égout de chaque type d'équipement de plomberie. Les données sont résumées et la longueur totale du pipeline est obtenue. Pour un assemblage précis du système, il est important d'acheter des raccords, des pinces, des adaptateurs, des tés.
Le pipeline est disposé avec une pente vers la colonne montante à raison de 1,5 à 2 cm pour chaque mètre courant.











