La disposition du bain dépend du type de locaux qu'il y aura, du nombre de personnes qui l'utiliseront, de la superficie que le bâtiment peut occuper. Pour chaque option, vous pouvez trouver la taille et les proportions optimales.
- Quels sont les locaux dans le bain et leur but
- Choisir un endroit pour construire
- Comment calculer correctement la taille du hammam dans le bain
- Dimensions des autres pièces et bains
- Points importants de la planification
- Bains en brique
- Bains avec salle de relaxation
- Ce qui doit être dans l'évier
- Décoration intérieure et zonage de l'espace
Quels sont les locaux dans le bain et leur but

Avant de procéder à la conception du bain, il est nécessaire de déterminer le mode et la fréquence d'utilisation du complexe. Il n'y a pas de dimensions adaptées à tous les cas.
- Si la taille du site est petite, ils se limitent à un petit bâtiment avec un minimum de fonctions. Si le territoire est vaste, vous pouvez construire un complexe thermal à part entière avec des chambres d'hôtes et une mini-piscine.
- S'ils ne prennent pas souvent un bain de vapeur, cela n'a aucun sens de construire un grand bâtiment. Si vous allez souvent aux bains publics, vous devez construire un complexe comprenant un hammam, une salle de lavage et un dressing spacieux.
- Bain public saisonnier - russe, finlandais, turc - le bâtiment est léger, n'a pas besoin d'isolation. Toute l'année est soigneusement isolée, équipée d'une ventilation, garnie de matériaux résistants aux chutes de température.
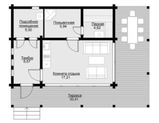
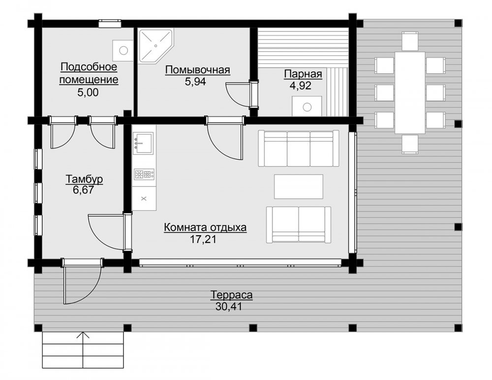
- Le plan de bain comprend obligatoirement un hammam. Ses dimensions dépendent du nombre d'utilisateurs et des tailles autorisées. La surface minimale pour 1 cuiseur vapeur est de 1 m². Mais comme vous devez également tenir compte de la surface du poêle et de la porte, au moins pour 1-2 personnes est de 3,6 mètres carrés. m.
- Dans les cas extrêmes, le bain ne peut être constitué que d'un hammam. Dans les modèles saisonniers, une douche extérieure à proximité ou un seau d'eau suspendu sous un auvent joue le rôle de salle de lavage. Dans les petits bâtiments, la salle d'eau comprend 1 cabine de douche. Parfois, une vraie douche remplace un baril d'eau et quelques bassins.
- Il est nécessaire de faire un dressing dans un bain public toute l'année. Il s'agit d'un vestibule qui empêche le hammam de se refroidir rapidement et permet de laisser les vêtements non pas à l'extérieur, mais à l'intérieur du bâtiment. Dans les grands complexes, le dressing est divisé en un dressing, où ils déposent des objets et rangent des accessoires de bain, et une chambre d'amis, où ils se détendent entre deux sorties au hammam.
- Une salle de bain apparaît dans les bâtiments relativement grands toute l'année.
Le complexe peut également inclure une piscine, une salle de billard, une véranda et plus encore.
Les salles de lavage et les hammams sont autorisés à être combinés. Sauna et douche - non.
Choisir un endroit pour construire

L'emplacement du bâtiment est réglementé par SNiP. Les exigences sont assez strictes, surtout s'ils construisent une maison en rondins ou un bain public à partir d'un bar :
- la distance des bains publics aux dépendances est d'au moins 6 m ;
- distance à une maison d'habitation en pierre - 8 m, bâtiments à cloisons en bois - 10 m, une maison privée en bois - 15 m;
- la distance du puits ou du forage est d'au moins 8 m ;
- distance aux toilettes - 8 m.
Les exigences concernent les objets dans leur propre datcha et dans une zone voisine.
D'autres facteurs sont également pris en compte. Il est préférable de construire un bain public sur une colline afin que les eaux usées puissent être évacuées par gravité vers la fosse septique. Il est préférable de placer le bâtiment avec l'entrée de la maison afin de contrôler le foyer de cette manière. Les fenêtres sont mieux faites du côté sud.
Comment calculer correctement la taille du hammam dans le bain
L'aménagement du sauna et du hammam commence par la détermination du nombre d'utilisateurs. Dans ce cas, les calculs sont extrêmement simples. Pour 1 personne, il y a 1 à 1,5 m². Compte tenu du poêle, le hammam aura une superficie de 1,5 m² pour un, 3 m² pour deux, et 5 m² pour trois.
Vous devez également prendre en compte la commodité des utilisateurs.Vous pouvez prendre un bain de vapeur en position assise, jambes tendues, allongé, allongé. La surface et la hauteur du plafond seront différentes pour cela.
- Assis pieds pliés, vous pouvez également défroisser sur une surface de 1 m², avec une hauteur de pièce de 1,5 m. Selon la largeur de l'étagère, vous pouvez vous asseoir ici avec un dossier droit, incliné si l'assise est inférieure à 60 cm, et avec pieds pliés si la largeur de l'étagère augmente jusqu'à 90 cm.
- Il est beaucoup plus pratique de s'allonger dans le hammam, mais dans ce cas, il faut plus d'espace. S'ils reposent sur une étagère avec des pieds pliés, sa longueur doit être d'au moins 1,5 m, les dimensions du hammam seront de 1,6x1,5 m.
- Si vous équipez une chaise longue, la longueur d'assise passe à 1,6-1,7 m.
- Ils reposent en pleine croissance sur une étagère de 1,85 m de long et 0,6 m de large.Même pour 1 personne, l'espace sauna passe à 2 m².
- La hauteur de la pièce est déterminée par la taille de l'utilisateur le plus grand. Elle dépasse rarement 1,9 m.
Lors du calcul de la surface optimale du hammam, tenez compte du fait que les étagères peuvent être à deux niveaux et que les utilisateurs peuvent cuire à la vapeur dans différentes positions. Par conséquent, on pense que les dimensions optimales d'un hammam pour 3 à 4 personnes sont de 5 à 6 m².
Dimensions des autres pièces et bains

Pour déterminer la taille du bain, créer des dessins des locaux, équiper correctement les communications, tout d'abord, ils sont guidés par des normes sanitaires et hygiéniques, puis par des questions de confort.
- Le projet d'un hammam ou d'un sauna dans un bain est le plus important. Si la superficie du bâtiment le permet, d'autres locaux seront aménagés.
- La surface de l'évier est calculée à partir du rapport - 1 m² par personne. Dans les cas extrêmes, il est permis d'installer une douche directement dans le hammam. 2 personnes peuvent facilement tenir dans une salle de bain de 1,4 à 1,7 m², tandis qu'un grand groupe de 4 personnes aura besoin de 5 m².
- Si la superficie n'est pas limitée, l'évier est combiné avec une piscine. Ses dimensions peuvent alors atteindre 5 * 5 m et plus.
- Si le dressing n'est qu'un dressing, 1,8 à 2 m² suffiront pour 1 à 2 utilisateurs. S'il y a plus d'utilisateurs, même dans un bâtiment compact, sa superficie passe à 6 m². C'est ici qu'apparaissent des bancs et une table. Le bois de chauffage peut également être laissé ici dans la quantité nécessaire pour 1 foyer.
Dans les grands complexes, le dressing et la salle de repos sont 2 pièces différentes. Selon le nombre d'invités, la superficie de ce dernier varie de 8 à 15 m².
La salle de bain est souvent installée dans une pièce séparée. Si la douche est une cabine de douche, les toilettes peuvent être placées à côté.
Points importants de la planification

Le hammam n'est pas seulement un endroit pour se laver. Les procédures doivent être effectuées de manière confortable.
- La hauteur de plafond optimale est de 2,3 m. À cette hauteur, même la personne la plus grande dans le hammam peut utiliser librement un balai.
- Dans le hammam, le plafond est fait d'au moins 2,1 m.Il est impossible de l'abaisser: l'air chaud ne déplacera pas l'air froid, mais changera radicalement. En même temps, il devient trop difficile de respirer dans le hammam. Il est également irrationnel de faire un plafond plus élevé. Plus la pièce est haute, plus il faut de temps et de carburant pour se réchauffer.
- La disposition du sauna finlandais est différente. Ils n'agitent pas le balai ici, donc la hauteur totale peut être réduite. Il est calculé comme suit : la hauteur de la dernière étagère plus 100-110 cm.
- Le sol du hammam ou du sauna doit s'élever de 10 à 15 cm au-dessus du sol des toilettes. Dans ce dernier, le niveau du sol doit être 3 cm plus bas que le sol de la salle de jeux.
- Un seuil est réalisé avant d'entrer dans le hammam.
- Les portes sont aussi étroites que possible - 75 à 80 cm afin que la pièce ne perde pas de chaleur.
- Les fenêtres des grands hammams et des salles de lavage sont petites - 35 * 35 cm, elles sont placées bas. Dans les salles de repos, la surface vitrée est de 30% de la surface de la pièce.
Dans les hammams, les saunas et les salles de lavage, l'éclairage artificiel est préférable. Sur le dessin de la baignoire, vous devez immédiatement marquer les emplacements d'installation des lampes et des prises.
Bains en brique

Le projet de planification d'un bain en brique est quelque peu différent d'une maison en rondins. Les dimensions de la pièce sont calculées de la même manière. Cependant, les dimensions physiques du bâtiment seront différentes.
Le bâtiment en brique est lourd. Une fondation en bande ou en dalle est posée en dessous.Dans le même temps, les eaux usées ne sont évacuées que par le drain, il n'est pas souhaitable d'équiper la fosse.
La pierre de construction est solide, mais n'a pas de propriétés d'isolation thermique élevées. Lors de la planification à l'intérieur d'un bain en brique, il faut garder à l'esprit que la couche d'isolation thermique et la finition supplémentaire prennent beaucoup de place. Un grenier ou un grenier apparaît ici plus souvent.
Toutes modifications, telles que le câblage électrique, l'installation d'une deuxième douche et la pose d'une plomberie, sont plus difficiles à réaliser.
Bains avec salle de relaxation
L'option bain, qui dispose d'une chambre d'amis, est plus intéressante. Entre les approches du hammam, il faut faire des pauses. Passer ce temps sur un canapé confortable, plutôt que debout dans le dressing, est bien plus agréable.
Pendant les procédures de bain, une personne perd beaucoup de liquide. Dans la salle de repos, vous pouvez boire du thé, des jus de fruits et compenser la perte.
Les femmes associent souvent bain de vapeur et soins de beauté. Les faire dans une pièce chaude fermée est beaucoup plus pratique.
Ce qui doit être dans l'évier

Le schéma de bain comprend généralement un lavage:
- douche avec arrosoir derrière cloisons ;
- cabine de douche - simple ou fonctionnelle;
- seau et seau pour verser de l'eau;
- un seau d'eau chaude et quelques bassins.
Cette dernière option peut être combinée avec un hammam. La douche est plus difficile à organiser.
Décoration intérieure et zonage de l'espace
Lors de l'élaboration d'un plan de bain, les caractéristiques de la décoration sont également prises en compte.
- Un hammam dans une maison en rondins n'a pas besoin de revêtement, cependant, les étagères et le sol doivent être entretenus : cirés, nettoyés.
- Dans un bâtiment en bois, le sauna est garni de planches en tilleul, tremble, cèdre et autres bois pouvant résister aux effets des températures élevées et de la vapeur. Les autres matériaux ne fonctionneront pas.
- L'aménagement du sauna dans un bâtiment en briques suppose la même finition. Étant donné ici, les murs sous le revêtement doivent être isolés.
- Si une salle de lavage est aménagée, des matériaux imperméables sont utilisés pour sa finition - carreaux de céramique, pierre artificielle, panneaux imperméables en plastique. Il vaut mieux ne pas utiliser de bois.
- Les chambres et les vestiaires ne sont pas très chargés. Tous les matériaux sont utilisés pour décorer la pièce. Cependant, il vaut mieux ne pas finir la maison en rondins. Bûche - le matériau est assez texturé et attrayant.
Un bain public dans un chalet d'été est un ajout très agréable et utile. Le plan de construction d'un bain russe est élaboré en tenant compte du nombre d'utilisateurs, de la zone possible du complexe et du mode d'utilisation.









Nous voulions depuis longtemps construire un bain public en brique, il y a une fondation en bande. Taille 6 • 4 plus 2 m par terrasse, vous pouvez en rajouter
Bonjour Vladimir, j'ai regardé votre vidéo et lu l'article, très instructif. Je prévois de commencer la construction d'une maison de bain 6x5x25 au printemps, dites-moi comment placer au mieux un hammam, un lavabo, une salle de bain, une salle de loisirs et un vestibule, selon mes plans, à l'entrée il y aura un vestibule de 1,5 sur 2,5, à partir de là l'entrée de la salle de jeux et le nœud seront de 1,5 sur 2,5 puisqu'il y aura toujours une chaudière à l'intérieur, la salle de repos sera de 4,5 sur 2,5, l'évier de 2 sur 2,5, la vapeur la pièce est de 2,5 sur 2,5, c'est une taille approximative sans déduire l'épaisseur des murs, le poêle à bois est chauffé à partir de la salle de repos. Ce sont des calculs approximatifs, qu'en pensez-vous ???
J'étais moi-même convaincu par expérience que le poêle devait être situé de manière à ce que la chambre de combustion soit hors du couloir et que les débris ne tombent pas dans d'autres pièces. trois compartiments dans le bloc, mais le foyer du poêle n'est pas dans la buanderie ou le hammam.
Merci! Informations très utiles. Je voulais construire un bain public 6x4, mais après avoir regardé votre programme, je devrai probablement augmenter la taille de 6x4,5.
Que pensez-vous d'une baignoire à cadre?