La maçonnerie en blocs permet de construire un bâtiment durable avec un haut niveau de sécurité incendie, bien que sa construction ne soit pas aussi rapide et facile qu'en bois. L'un des exemples de tels locaux est un bain en brique.
Avantages et inconvénients d'un bain en brique

Une baignoire en brique à faire soi-même nécessite le bon choix de matériau. Les produits de silicate blanc ont les meilleures caractéristiques de performance. Le prix est légèrement inférieur pour les briques d'argile rouge, qui sont également bien adaptées à la construction d'un hammam. L'environnement à haute température dans lequel ils sont fabriqués contribue à la résistance et à la fiabilité du matériau. Il est également possible d'utiliser des briques pleines - lisses (grade 100 ou 175) et céramique ondulée (100 et 125).
La construction d'un bain en brique est souvent envisagée s'il est prévu de l'exploiter souvent et pendant de nombreuses années. Les bâtiments construits avec ce matériau peuvent durer plus d'un siècle. Les autres avantages incluent :
- résistance à l'humidité et pas besoin de traitement régulier avec des antiseptiques;
- incombustibilité;
- aspect attrayant qui ne nécessite pas de revêtement supplémentaire;
- respect de l'environnement;
- pas de prédisposition des parois à pourrir de l'intérieur dans l'environnement humide du hammam et de la douche ;
- résistance aux micro-organismes.
Les inconvénients sont la nécessité d'une base très solide (ce qui nécessite beaucoup de ressources) et des coûts financiers plus élevés que la construction d'une baignoire en bois.
Il faudra beaucoup plus de temps pour chauffer le poêle dans une pièce en briques, mais il refroidira lentement.
Projets de construction

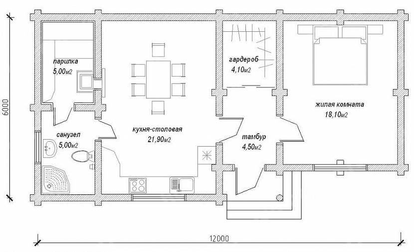
Avant de commencer les travaux, il est nécessaire de préparer un projet de bain. Le dessin indique les locaux internes, leur position relative et leurs dimensions. S'il n'y a pas assez d'espace sur le site, vous pouvez faire un mini-bain aux dimensions de 3x4. Dans ce cas, les dimensions de la chambre double seront de 1,5x3 m, le dressing et la salle de douche - 2,5x1,5 m.
S'il y a suffisamment d'espace et de fonds dans le bâtiment, des locaux supplémentaires peuvent être fournis, par exemple une véranda ou une terrasse, ainsi qu'un dressing spacieux et confortable, qui sert également de salle de repos.
Choisir un emplacement et une brique
Avant de construire un bain en briques de vos propres mains, vous devez choisir le bon endroit. Selon les normes sanitaires, un hammam chauffé au bois doit être situé à au moins 12 mètres de la maison. Si une chaudière (électrique ou au gaz naturel) est installée dans la salle de sauna, ce chiffre est réduit à 5 m. Pour éviter l'inondation des fondations au printemps, le bâtiment doit être situé à une distance suffisante des plans d'eau (au moins 30 m ). La brique étant un matériau non combustible, une telle baignoire peut être fixée à la maison. Cela permet d'économiser des coûts de communication, et dans ce cas, la fondation peut être construite en parallèle.
Il est important que les fenêtres et les portes du bâtiment s'ouvrent vers l'extérieur. C'est bien quand le poêle est en face de la porte qui mène au dressing. Si les fenêtres du hammam sont orientées à l'ouest, les rayons du soleil y pénétreront plus longtemps, de sorte que les visiteurs devront moins souvent allumer l'éclairage électrique.
Instructions pas à pas
En l'absence d'une expérience suffisante, il vaut mieux confier le calcul des matériaux requis à des spécialistes.
Fondation

La base doit être enterrée sous le point de congélation du sol. Le type est choisi en fonction des caractéristiques du sol.S'il est mobile, se soulève ou se fige facilement, les pieux vissés conviennent. Ils sont placés dans les angles du bâtiment, avec des piliers et sur le pourtour tous les 2 m.Lorsque le sol n'est pas problématique, ils équipent une fondation filaire. Il peut être fabriqué à partir de briques, de blocs de béton ou de mortier de ciment coulés dans le coffrage.
Description pas à pas de l'organisation de la bande de base :
- le site est débarrassé des débris et des branches ;
- le marquage est effectué conformément au projet ;
- une tranchée d'une largeur de 0,3 à 0,4 m est extraite;
- au fond, un coussin est organisé à partir de 0,1-0,2 m de sable et de la même hauteur de la couche de pierre concassée;
- d'en haut, une étanchéité en feuille ou un géotextile est posé en plusieurs couches;
- le coffrage est en cours de montage, dont les parois intérieures doivent être enveloppées d'une pellicule plastique (la structure elle-même doit s'élever de 0,3 à 0,6 m au-dessus du sol);
- à l'intérieur, une cage d'armature est placée, reliée à des barres de fer d'un diamètre de 12-16 mm;
- le coulis est coulé (vous pouvez le faire vous-même ou acheter un mélange prêt à l'emploi dans un magasin de construction).
Des systèmes d'approvisionnement en eau et d'assainissement sont également en cours de développement à ce stade. Le coffrage est démonté au bout de 2 semaines. Les 5 premiers jours après la coulée, le fond de teint est humidifié avec de l'eau trois fois par jour pour éviter toute déformation. Plusieurs trous doivent être percés dans le ruban pour la ventilation d'un diamètre de 10 cm.Une fondation séparée est disposée sous le four en pierre. Pour se protéger des précipitations, une zone aveugle d'un mètre de large est organisée. Il est fait de gravier et d'argile huileuse. Il sera possible de poser les murs dans un mois, lorsque le ciment durcira.
Des murs

Les murs peuvent être réalisés en maçonnerie en une et demie à deux briques (après quoi l'isolation est organisée), ou en deux rangées, entre lesquelles il y a un espace. Il peut être laissé vide ou un radiateur peut y être installé.
Une couche d'étanchéité est montée sur la fondation avant la pose de la brique. Vous pouvez utiliser des mastics ou des matériaux en rouleau. Les cadres de fenêtres et de portes sont ajustés dans le processus. Sur les côtés des ouvertures, des poutres de bois sont placées, ayant la même épaisseur que celle de la brique elle-même. Ils sont recouverts d'une couche de feutre de toiture et enduits.
Les briques cassées ne doivent pas être placées dans les coins d'habillage et les piliers. Si le bloc doit être divisé, un marteau pioche est utilisé. Le mortier de maçonnerie est appliqué sur toute la surface du produit.
Toit et sol

Plus le toit est complexe et plus la pente est prononcée, plus le budget de construction sera important. Dans les murs, vous devez percer des trous pour les goupilles de fixation et installer le Mauerlat et les solives de plafond sur le dessus. Dans les zones de contact avec la brique, les poutres sont recouvertes de matériau de toiture. Une planche non rognée convient au revêtement de sol. Lors de son installation, un conduit de cheminée est prévu. Dans la zone de contact de ce dernier avec le plafond, une tôle est installée. Ensuite, le système de chevrons est assemblé, le lattage et le revêtement de sol de finition sont installés.
Les solives de plancher sont fixées aux briques avec des coins métalliques. Des barres crâniennes y sont clouées des deux côtés, supportant le revêtement rugueux des planches non rognées. Sur ce dernier, 2 couches d'imperméabilisation sont placées avec une isolation entre elles, et un revêtement de sol de finition est réalisé par dessus.
Décoration extérieure et intérieure
La décoration intérieure peut être arrangée en utilisant une doublure en bois dur - tremble, aulne ou tilleul. Il est monté sur une caisse en bois avec une isolation écologique. La feuille d'aluminium convient comme pare-vapeur. Les sols de la salle de douche peuvent être carrelés avec des carreaux de céramique.
En règle générale, la décoration extérieure d'un tel bâtiment n'est pas réalisée: la brique ne s'effondre pas sous l'influence de l'humidité et est attrayante sans revêtement.








