Les performances sportives sur agrès à barre transversale font partie de nombreux tournois. La structure est une barre d'acier fixée sur des supports verticaux, parfois elle est posée sur des haubans métalliques. Vous pouvez construire une barre horizontale de vos propres mains dans un appartement, dans la cour de votre propre immeuble ou à plusieurs étages. Les tractions ou les ascenseurs à l'envers augmenteront votre niveau de forme physique.
- Caractéristiques de la barre horizontale
- Types de projectiles pour l'autoproduction
- Avantages et inconvénients des designs faits maison
- Choix des matériaux
- Calcul des matériaux
- Outils pour le travail
- Règles d'installation
- Diamètre de la barre transversale
- Instructions de fabrication étape par étape
- Barre horizontale barres parallèles
- Dans la porte
- Entre deux murs
- Plafond
- Au mur suédois
- Option rue
Caractéristiques de la barre horizontale

Le projectile convient à l'entraînement de personnes de différents niveaux de condition physique, de poids corporel et d'âge. Les dimensions des barres horizontales professionnelles sont régies par les règles de la Fédération Internationale de Gymnastique.
Dimensions standards :
- la barre est placée à un niveau de 2,78 m du niveau de la surface d'appui ;
- la longueur de la traverse est de 2,4 m ;
- l'épaisseur ne dépasse pas 2,8 cm.
En cas de production individuelle, les dimensions sont prises en compte en tenant compte de la taille d'un utilisateur particulier. En classe, une personne utilise son propre poids corporel, n'utilise pas d'autres amplificateurs de poids. Le projectile est activement utilisé non seulement pour améliorer la forme, mais également lors de la rééducation après des opérations, des blessures musculaires et osseuses.
Types de projectiles pour l'autoproduction

Les barres horizontales sont placées à l'extérieur et à l'intérieur. La fonctionnalité est choisie en fonction du nombre d'accessoires associés à la barre horizontale.
Possibilités extérieures :
- la traverse est fixée sur les troncs de deux arbres ;
- la planche est posée sur des piliers, bétonnés dans le sol ;
- pour la fixation, des clôtures verticales de bâtiments existants sont utilisées, par exemple des maisons, des belvédères, des buanderies.
Pour l'installation, choisissez une surface plane ou créez une plate-forme spéciale. Il doit avoir un revêtement doux sous forme de terre, d'herbe, de couche caoutchoutée.

Types de barres horizontales pour un appartement :
- Les muraux sont fixés à la zone inoccupée du mur: la structure de support est boulonnée au plan vertical.
- Des structures de porte sont placées au-dessus de l'ouverture d'entrée. Le modèle est pratique car le mur n'interférera pas avec les jambes lors de la traction.
- La forme angulaire est également appelée murale, ses pièces de support sont montées sur deux surfaces adjacentes.
- Des coulisses sont installées dans l'allée de la porte. Il est important de sélectionner la section des éléments de support afin qu'ils puissent supporter la charge.
- Les produits articulés et amovibles sont supportés sur des murs opposés situés à proximité les uns des autres, par exemple dans un couloir jusqu'à 1,5 m. Pour cela, des rainures sont formées dans les surfaces ou des supports suspendus sont placés.
Il existe des options pour ajouter au mur suédois, s'il y en a déjà un dans la pièce. Les modèles de plafond sont fixés à la dalle de l'étage supérieur, poutre.
Sur une seule barre, vous ne pouvez que vous hisser ou faire des coups. Modifiez la structure pour éliminer les exercices de divers degrés de complexité et d'apparence.
La barre transversale entre deux supports, par exemple des arbres épais, les murs de la pièce sont complétés par des poignées de forme particulière, qui permettent de saisir la barre avec une prise différente.
Il y a généralement beaucoup d'espace dans la cour, donc ils combinent le mur suédois, les escaliers de gymnastique.
Avantages et inconvénients des designs faits maison

Si vous assemblez la barre horizontale au mur de vos propres mains, il devient possible de compléter correctement tous les appareils de votre propre gré.
Les avantages d'un design fait maison :
- la possibilité de fabriquer un produit aux dimensions de la pièce, choisissez l'endroit parfait dans la cour;
- la probabilité d'ajuster les paramètres à votre propre poids corporel et d'ajouter des équipements pour les activités des enfants.
Les inconvénients sont le temps consacré à la conception de la structure, à la sélection des matériaux, à la découpe, à l'assemblage et à l'installation. Il est difficile de travailler le soudage dans un appartement s'il n'y a pas de garage à proximité.
Choix des matériaux

Pour un équipement de sport, la qualité principale étant la fiabilité, les matériaux sont donc choisis en fonction de cette exigence.
Les tubes en acier sont utilisés :
- Pour un usage interne, des tuyaux en fer noir sont prélevés et, après soudage, les murs sont nettoyés avec une meuleuse, apprêtés, peints avec des compositions métalliques.
- Pour une installation à l'extérieur, ils utilisent les mêmes matériaux, mais le traitement est rendu plus difficile - ils comprennent une couche supplémentaire d'un composé anti-corrosion contre la rouille.
Les éléments en acier dans la construction d'une barre horizontale faite maison servent longtemps, sont faciles à entretenir et à manipuler. Pour la peinture, des composés époxy, des peintures nitro, des émaux alkydes et à l'huile sont utilisés. Le revêtement en poudre fonctionne bien, mais il nécessite un équipement spécial.
Le bois est moins cher, plus facile à traiter et aucune machine à souder n'est nécessaire pour l'assemblage. L'inconvénient du bois est qu'après un certain temps de fonctionnement, le matériau perd sa capacité portante et s'effondre. La traverse et les poteaux sont protégés des effets du climat et des micro-organismes.
Calcul des matériaux
Liste générale des matériaux sans référence aux dimensions :
- tuyau rond pour la fabrication de la barre supérieure d'un diamètre de 20 à 30 mm;
- un profilé rectangulaire d'un diamètre de 30 x 40 mm pour un cadre, il est découpé en nombre de segments indiqué sur le dessin ;
- ancre pour la fixation dans les murs;
- plaque métallique en fer d'une épaisseur de 4 à 5 mm;
- blocs de bois pour décorer le nid d'atterrissage, si la barre transversale est placée dans des murs opposés.
Les barres sont changées avec du contreplaqué épais (18 - 22 mm), un flan métallique avec un échantillon le long du diamètre de la bande. Les modèles fixes sont fixés en les insérant dans des coupes de tuyaux.
Outils pour le travail

Un outil de mesure et de vérification est préparé : un mètre ruban, un niveau laser ou à bulle, une équerre de menuisier pour exposer des pièces à 90°, un marqueur de chantier. Les pièces métalliques sont assemblées à l'aide d'une machine à souder.
D'autres outils seront nécessaires :
- un outil pour travailler le métal (coupe et meulage), une meuleuse avec un cercle approprié, une scie à métaux à dents fines;
- lime, marteau, pinces, coupe-fils;
- perceuse avec pièces jointes pour vis et boulons, clés, tournevis.
Des pinceaux sont utilisés pour l'apprêt, la peinture est diluée dans des cuvettes spéciales avec une étagère pour essorer.
Règles d'installation
Placer le projectile en tenant compte des exigences :
- éclairage solaire - la barre horizontale ne doit pas être dans un endroit éclairé du matin au soir, car l'activité physique est dangereuse dans de telles conditions;
- humidité du sol - l'évaporation de l'humidité rend la respiration difficile et en hiver, en cas de gel, la force de soulèvement peut expulser les poumons;
- les piliers doivent être bétonnés, les parties inférieures sont enveloppées de matériau de couverture en deux couches ou enduites de résine fondue trois fois.
Vous devez créer une barre transversale pour une barre horizontale de rue à une hauteur telle que vous puissiez l'atteindre avec les doigts d'une main tendue, debout sur vos orteils. Dans la pièce, la distance entre la planche et le plafond est d'au moins 32 cm.
Diamètre de la barre transversale

La taille de la section du tuyau est importante, une attention particulière est également portée au choix de l'épaisseur de paroi. Les recommandations standard sont destinées aux personnes de taille moyenne, avec une taille de paume ordinaire.
Règles de sélection du diamètre :
- mesurer la paume au début des doigts;
- le résultat est multiplié par 3,3 ;
- la valeur est arrondie à zéro ou cinq.
Par exemple, la largeur était de 9 cm. Après multiplication, on obtient 29,7 cm. Le diamètre de la bande est compris entre 30 et 32 cm. Pour la barre transversale, il est préférable de prendre un produit rond et les produits laminés profilés sont utilisés pour le cadre, les supports et autres fixations.
Instructions de fabrication étape par étape

Assurez-vous de choisir des racks de la bonne section ou de fixer la barre horizontale sur des murs fiables, des troncs épais. Un dessin préliminaire est réalisé d'une barre horizontale murale avec des dispositifs 3 en 1 ou 2 en 1. Pour une traverse simple au sol ou sur porte, un schéma de montage et d'installation des éléments est également en cours d'élaboration.
Processus étape par étape :
- des nids sont soudés sur des murs ou des crémaillères pour fixer les extrémités de la traverse ;
- si les plaques sont en bois, elles sont découpées dans le cadre de la porte ou fixées aux murs avec des ancrages à la hauteur requise;
- essayer et couper la barre à la taille.
La barre transversale est placée dans les nids préparés. La précision de l'installation est vérifiée avec un niveau, si des racks sont utilisés, un fil à plomb est utilisé. Dans des conditions extérieures, un petit auvent ou une visière est en plus monté sur le site d'entraînement.
Barre horizontale barres parallèles

Les barres sont conçues pour une prise étroite et large ; de tels dispositifs, associés à une barre de traction, coûteront moins cher qu'un modèle de magasin.
Le projectile est constitué de deux paires de tubes verticaux. La distance entre les paires est de 1,5 m et entre les éléments opposés - 0,7 - 0,9 m. Ils sont bétonnés dans des fosses d'une profondeur d'au moins 50 cm. Des traverses rigides d'un tuyau rond sont soudées à deux poteaux.
La barre horizontale est fixée sur l'une des paires de tuyaux. Il est fait de la hauteur appropriée. Pour les enfants, le principe de fabrication d'une coquille est similaire, en tenant compte de la taille de l'enfant, de la taille de ses paumes.
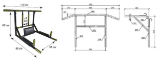
Dans la porte
Une telle barre transversale est faite simple, elle n'est pas combinée avec les barres asymétriques, un mur de gymnastique. Les conceptions compactes sont conçues de manière à ne pas gêner le mouvement des personnes entre les pièces.
Modèles de barres horizontales de porte :
- Stationnaire;
- amovible;
- pliant.
Le premier type prévoit une fixation fixe de la poutre porteuse. Pour son installation, des tuyaux métalliques ronds sont utilisés, où les extrémités sont insérées. Pour les démontables, les pièces sont montées avec un échantillon en partie haute afin de retirer la barre si besoin. Les pliants ont une structure complexe. Une fois pliées, les structures ne dépassent pratiquement pas au-dessus de l'ouverture ou à l'intérieur de celle-ci.
Entre deux murs

De telles structures sont le plus souvent placées dans le couloir, là où la largeur de la pièce le permet. Une structure pliante de poutres est parfois placée sur le côté, un mur pour la gymnastique est monté. Un modèle détachable de balançoire pour enfants peut être joué sur la barre horizontale.
L'outil de traction dans la zone du couloir ne prend pas beaucoup de place et les activités n'interfèrent pas avec les autres membres de la famille. Fixez les extrémités sur les murs de manière sourde ou amovible. Utilisez des supports de tuyaux ou des douilles suspendues en fer, en contreplaqué, en bois. Pour l'installation, prenez des chevilles ou des ancrages métalliques d'une longueur d'au moins 100 - 150 mm. Les superpositions sont décorées pour correspondre à la couleur des murs ou laisser un jeu de couleurs contrastées.
Plafond
Le design est choisi si la pièce a de hauts plafonds pour que le bar s'avère être à la hauteur exigée par les normes.
Détails standards :
- Un tuyau rond pour la fabrication d'une traverse, sa longueur est généralement de 1,0 à 1,2 m.Les extrémités de la bande à une distance de 20 cm du bord peuvent être pliées à un angle par rapport au sol de la pièce.
- Deux tuyaux courts (15 cm) pour une prise différente sont soudés perpendiculairement à la barre. La distance entre eux est de 20 à 25 cm.
- Éléments de fixation au plafond tels que des plaques.
- Profil carré pour montants.
Pour les personnes lourdes, deux autres plaques sont placées au plafond, elles sont placées en forme de rectangle. Les détails d'une telle barre horizontale sont soudés ensemble.
Au mur suédois

Cette méthode est utilisée s'il y a déjà un mur dans la pièce et que sa hauteur vous permet de disposer la barre horizontale au bon niveau. Tenir compte de l'écart au plafond.
Les plaques de fixation sont pliées en forme de tiges murales, elles sont prises avec une longueur initiale d'environ 60 cm.La partie pliée enferme complètement la barre transversale du mur, une marge de plusieurs centimètres de couverture est autorisée.
Si la hauteur sous plafond de l'appartement est comprise entre 2,5 et 2,55 m, certains exercices sur la barre horizontale ne fonctionneront pas. La barre transversale du mur suédois est associée à un anneau de basket-ball, une corde d'escalade et un sac de boxe.
Option rue
Ils utilisent du métal, des supports en bois et mettent des piliers en béton. Aux extrémités de la partie souterraine des crémaillères en fer et en bois, des éléments transversaux ou transversaux sont soudés ou percés. Ils sont bétonnés avec les poteaux pour donner une stabilité supplémentaire aux poteaux contre l'arrachement. L'installation sera plus difficile, mais les racks resteront en place en toute sécurité pendant une longue période.
À l'extérieur, des entretoises sont utilisées sous forme de haubans, d'éléments inclinés rigides, le cadre dans les coins est fixé avec des entretoises diagonales. Lors de l'assemblage pour les boulons, les trous sont percés 0,5 mm plus large que la quincaillerie. Les extrémités des boulons, après avoir vissé les écrous, sont coupées, meulées avec une meuleuse.









