L'une des solutions au problème du chauffage d'une maison peut consister en des chaudières à pyrolyse pour le chauffage à combustible solide - un fonctionnement efficace et un fonctionnement sans prétention. Cependant, le coût élevé des appareils de chauffage préfabriqués fait réfléchir un acheteur potentiel : ne devrait-il pas essayer de fabriquer lui-même une chaudière à pyrolyse ? Pour une personne travailleuse avec des compétences techniques, c'est tout à fait dans les forces. Notre article vous aidera à comprendre comment se déroule le processus de combustion dans une chaudière à pyrolyse pour chauffer une maison privée, à partir de quels matériaux elle peut être montée et comment la connecter au système de chauffage.
- Caractéristiques des appareils de chauffage à pyrolyse
- Exigences pour les chaudières à pyrolyse maison
- Combustible pour chaudières à pyrolyse
- Chaudière à pyrolyse bricolage
- Matériaux et technologie de fabrication
- Test de la chaudière finie
- Schémas de raccordement d'une chaudière à pyrolyse au chauffage
- Chauffage à l'eau
- Chauffage à air
- Pour terminer
Caractéristiques des appareils de chauffage à pyrolyse

La principale différence entre une chaudière de chauffage à combustible solide à pyrolyse (générateur de gaz) réside dans le principe particulier de la combustion du combustible. Si, dans les chaudières ordinaires, le bois de chauffage ou le charbon brûle simplement avec une flamme nue, le processus est divisé en deux étapes:
- Le combustible est chargé dans la chambre de combustion et le feu est allumé. Lorsque la température dépasse 400 ° C, le processus de pyrolyse commence - une lente combustion du carburant avec un manque d'oxygène. Cela produit de la chaleur, de la fumée et des gaz de pyrolyse, qui comprennent du monoxyde de carbone et divers hydrocarbures.
- Pour passer la chaudière en mode de fonctionnement, fermez le volet de tirage direct et allumez le ventilateur. Les produits de pyrolyse gazeux sont expulsés par un flux d'air primaire dans la chambre de combustion, où ils sont enrichis en oxygène provenant de l'apport d'air secondaire chauffé. Le mélange de gaz de pyrolyse et de particules en suspension brûle complètement et cède son énergie thermique à l'échangeur de chaleur intégré à la chaudière.
Les avis des utilisateurs confirment à quel point les chaudières à pyrolyse sont économiques et pratiques. Désormais, ils n'ont plus besoin de se lever la nuit pour jeter du bois de chauffage. La prochaine portion de combustible chargée dans la chaudière va lentement couver du soir à la fin de la matinée. L'efficacité de la combustion est telle qu'il ne reste presque plus de cendres et qu'une légère fumée transparente sort de la cheminée.
Pour le déroulement normal du processus de pyrolyse, la chaudière doit être équipée d'un ventilateur, il est donc nécessaire que l'alimentation électrique de la maison soit ininterrompue.
Exigences pour les chaudières à pyrolyse maison

Pour qu'une chaudière de chauffage à pyrolyse fabriquée soi-même surpasse en efficacité une chaudière à combustible solide conventionnelle, sa conception doit répondre à des exigences strictes :
- la température dans le four doit être optimale (600-700 ° C), car c'est dans ces conditions que se produit la libération de produits de pyrolyse de la plus haute qualité;
- la régulation de la puissance de combustion ne doit pas réduire significativement le rendement ;
- la chaudière de chauffage doit être adaptée à une combustion continue de combustible à long terme ;
- l'enveloppe de la chambre de combustion des gaz de pyrolyse doit être résistante à la corrosion et capable de supporter des températures supérieures à 1200°C.
Il est également souhaitable qu'une chambre pour le séchage préliminaire des matières premières en bois soit prévue dans la conception de la chaudière.
Caractéristiques techniques qu'une chaudière à pyrolyse artisanale devrait avoir pour chauffer une maison privée:
| Spécifications techniques
| Unitétour. | Pour les petites maisons
| Pour les chalets |
| Pouvoir | kilowatts | 15–25 | 35–50 |
| Efficacité | % | 80 | 85 |
| Pression de service maximale | bar | 1,8–2,0 | 3,0–4,5 |
| Max. zone de chauffage | m² | jusqu'à 200 | jusqu'à 500 |
| Volume d'eau de l'échangeur de chaleur | je | 18–25 | 40–65 |
| Volume du four | je | 70–100 | 200–300 |
L'utilisation d'un appareil de chauffage fait maison est parfois risquée, car si le processus de combustion est mal régulé, le soi-disant "pop" peut se produire - une explosion de gaz de pyrolyse.
Combustible pour chaudières à pyrolyse

De tous les types de combustibles, le bois de chauffage et divers déchets de bois sont les mieux adaptés au processus de pyrolyse. De plus, le charbon ou la tourbe peuvent également être brûlés dans des chaudières à pyrolyse pour chauffer une maison privée, mais l'efficacité sera un peu plus faible.
L'épaisseur des bûches importe peu et leur longueur n'est limitée que par les dimensions de la chambre de combustion. La condition principale est que la pourriture et la poussière ne se rencontrent pas parmi eux. Si, en plus du bois de chauffage, de la sciure de bois et des copeaux sont utilisés pour brûler, leur volume ne doit pas dépasser 1/3 de la charge totale de combustible.
Le bois de chauffage doit être sec, avec une teneur en humidité ne dépassant pas 20-25%. Sinon, sa combustion sera incomplète, le transfert de chaleur diminuera et la cheminée sera obstruée par la suie et le goudron.
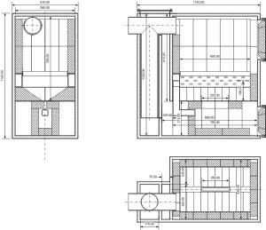
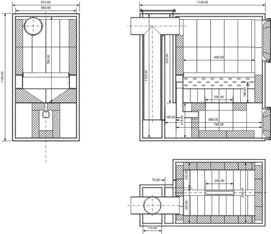
Chaudière à pyrolyse bricolage

Faire àvêlage chauffage pyrolyse combustible solide, un maître amateur devra d'abord étudier les informations disponibles sur cette question.
Dans le cadre de notre article, nous ne pouvons donner que des recommandations générales, et des dessins détaillés peuvent être trouvés sur Internet. Il est également utile de consulter les forums où les experts échangent leurs opinions.
Selon leurs critiques, les chaudières de chauffage à pyrolyse à faire soi-même coûteront toujours moins cher que d'acheter des chaudières de marque.
La puissance de la chaudière à pyrolyse est déterminée par plusieurs facteurs, dont les principaux sont : les dimensions globales du produit, le volume de la chambre de combustion et la hauteur de l'alimentation en air primaire.
Tout schéma prêt à l'emploi d'un système de chauffage avec une chaudière à pyrolyse devra être finalisé en tenant compte des conditions spécifiques de votre maison.
Matériaux et technologie de fabrication

Pour fabriquer vous-même une chaudière à pyrolyse, vous aurez besoin de:
- machine à souder électrique et bon approvisionnement en électrodes;
- "Grinder" et au moins 20 molettes de coupe ;
- acier 4 mm, 3 tôles 1,25 × 2,5 m ;
- acier 2 mm, une tôle;
- tuyau 57 mm d'une longueur totale de 8 m;
- briques en argile réfractaire, 12-14 pièces;
- et quelques autres petits détails.
Couper du métal et effectuer des travaux de soudage n'est pas une tâche facile. S'il n'est pas possible de le faire par vous-même, vous devrez inviter un maître.
Les portes de la chaudière doivent être bien fermées afin que la chaleur ne se perde pas et que la fumée ne s'échappe pas.
Test de la chaudière finie
Au cours du test, les défauts d'une chaudière de chauffage domestique doivent être identifiés et les moyens de les éliminer doivent être déterminés. Une unité de pyrolyse bien assemblée a les propriétés suivantes :
- le carburant s'enflamme assez facilement avec un tirage naturel;
- la fumée ne s'échappe pas sous le joint supérieur de la porte ;
- le ventilateur fournit un flux d'air stable et ne fait pas de bruit;
- la chaudière se met en marche dans 20-30 minutes;
- lorsque le ventilateur est allumé, la flamme dans la chambre de combustion est forte et uniforme;
- le processus de combustion du gaz de pyrolyse est contrôlable ;
- lorsque le ventilateur s'arrête, il n'y a pas d'effet de poussée inverse ;
- le rapport entre la puissance calorifique et la quantité de bois de chauffage consommée correspond aux calculs.
Si une chaudière de chauffage domestique démontre le respect de ces paramètres, elle peut être reconnue comme opérationnelle après avoir éliminé les défauts constatés.
Schémas de raccordement d'une chaudière à pyrolyse au chauffage
La chaleur dans la maison dépend de la bonne disposition du système de chauffage avec chaudière à pyrolyse et du bon fonctionnement du four.Toutes les nuances doivent être prévues au stade de la rédaction du projet. Le chauffage de la maison peut être fait à la fois avec de l'eau chaude et de l'air.
Lors du développement d'un système de chauffage, vous devez suivre strictement les recommandations spéciales et les normes de sécurité.
Chauffage à l'eau

L'installation d'une chaudière de chauffage à combustible solide à pyrolyse doit être effectuée dans un local spécialement désigné pour la chaufferie. En plus de la chaudière elle-même, des éléments du système de chauffage tels qu'une pompe de circulation, des vannes d'arrêt, un vase d'expansion, des capteurs, des thermomètres et d'autres dispositifs doivent être placés ici. Dans la même chaufferie, il est logique d'aménager un emplacement pour un tas de bois de chauffage non loin de la chaudière, afin que vous n'ayez pas à sortir souvent les chercher au froid.
Le raccordement direct de la chaudière à pyrolyse au système de chauffage peut se faire de différentes manières. La figure suivante montre la manière la plus simple de se connecter.
Autres façons de connecter une chaudière à pyrolyse à un système de chauffage de l'eau :
- avec contour de mélange - un circuit supplémentaire et des robinets qui régulent la quantité d'eau chauffée sont ajoutés aux éléments du système ci-dessus ;
- avec une flèche hydraulique - ce schéma fonctionne mieux dans les systèmes de chauffage à plusieurs circuits ;
- avec réservoir de stockage - l'eau est chauffée par son alimentation depuis le réservoir et permet d'optimiser le fonctionnement de la chaudière même sans électricité.
Lors du choix d'un schéma de raccordement pour un système de chauffage par chaudière à pyrolyse, il est conseillé de calculer le coût de chaque option afin de trouver la meilleure d'entre elles.
Chauffage à air

Les propriétaires utilisent le plus souvent une chaudière à air chaud à pyrolyse non pas pour chauffer la maison, mais pour les garages, les entrepôts, les serres et autres pièces de service. La méthode de chauffage des pièces à vivre avec de l'air chauffé ne s'est pas encore généralisée. Mais là aussi, l'utilisation d'une chaudière à pyrolyse pourrait démontrer ses avantages. Par exemple, un système de chauffage à air est particulièrement pertinent lorsque les propriétaires d'une maison de campagne craignent que le système de chauffage à eau ne dégivre pendant leur longue absence.
Le système utilisant des chaudières à pyrolyse pour le chauffage de l'air se compose d'un ou plusieurs ventilateurs, de capteurs de température, d'une unité de contrôle et d'un réseau de conduits d'air pour transporter l'air chaud vers les lieux de chauffage.
Quel que soit le système de chauffage utilisé, les chaudières à pyrolyse à combustible solide sont utilisées, pour leur fonctionnement sans problème, il est nécessaire d'isoler la cheminée afin que la condensation ne se forme pas sur ses parois.
Pour terminer
En analysant les critiques des chaudières à pyrolyse, on peut se faire une idée de leurs avantages incontestables. Dans un contexte d'augmentation progressive du prix du gaz naturel, la décision d'aménager un système de chauffage avec une chaudière à pyrolyse de fabrication artisanale se justifie de plus en plus. De nombreux utilisateurs sont séduits par l'autonomie d'un tel système et la facilité de son fonctionnement.
Regardez une vidéo sur la façon de créer de vos propres mains un modèle assez simple d'une chaudière à pyrolyse :
Pour ceux qui ne peuvent pas se connecter à l'alimentation centrale en gaz, les chaudières à combustible solide à pyrolyse deviendront des assistants fiables pour chauffer leur maison. Mais si vous décidez d'économiser de l'argent, votre décision sera de fabriquer vous-même l'appareil de chauffage. L'installation et le raccordement de la chaudière à pyrolyse au système de chauffage seront accessibles aux personnes ayant des compétences en ingénierie et en serrurerie.







