La distribution du chauffage dans une maison privée peut être équipée de différentes manières. Celui qui convient doit être choisi au stade de la conception. La méthode est choisie en tenant compte des capacités financières et des paramètres de la pièce.
- Méthodes de câblage du système de chauffage
- Verticale
- Horizontal
- Variétés de systèmes basés sur le principe du mouvement du liquide de refroidissement
- Gravitationnel
- Forcé
- Routage monotube et bitube
- Une connexion de tuyau
- Raccordement à deux tuyaux
- Distribution de chauffage radial
- Choix du mode de distribution du chauffage
- montage de bricolage
- Dessin des systèmes de câblage
- Erreurs d'installation à faire soi-même
Méthodes de câblage du système de chauffage

La caractéristique la plus importante pour un système de chauffage est son agencement. Ce concept signifie l'installation d'une conduite de chauffage et la méthode de raccordement des radiateurs et des échangeurs de chaleur à celle-ci. À l'aide du câblage, un itinéraire est prévu le long duquel le liquide de refroidissement se déplacera de l'appareil de chauffage à la pièce.
La méthode de connexion des dispositifs de transfert de chaleur dépend également du type de câblage. Il existe deux types de câblage du système de chauffage : horizontal et vertical.
Verticale
Avec un système de distribution vertical, les colonnes montantes seront des travailleurs. Des dispositifs de transfert de chaleur y sont connectés en position horizontale. Des colonnes montantes traverseront toutes les pièces situées les unes au-dessus des autres. Si une vue monotube est utilisée, l'eau chaude s'écoule de la colonne montante à travers la batterie. Puis elle retourne à la colonne montante. Ainsi, il y a un mouvement à travers les étages.
Le système à deux tuyaux prévoit l'installation de deux colonnes montantes parallèles l'une à l'autre. L'un d'eux sera le serveur, le second sera l'inverse. Le travail est structuré de telle manière que le caloporteur refroidi ne passe pas dans la colonne montante d'alimentation.
Horizontal
Avec un câblage horizontal, le tuyau principal remplit la fonction d'une colonne montante. Il est posé dans toutes les pièces, puis des échangeurs de chaleur sont connectés. Avec un tel câblage, des systèmes à deux tuyaux et à un tuyau peuvent également être utilisés.
La vue verticale n'est utilisée que dans les bâtiments de plus d'un étage. Pour les petites maisons à un étage, un câblage horizontal est utilisé.
Variétés de systèmes basés sur le principe du mouvement du liquide de refroidissement
Le chauffage de la pièce se produira si l'eau chaude circule le long du circuit. Sur la base du principe du mouvement du liquide de refroidissement, deux types de systèmes sont divisés. Ils peuvent être naturels (gravitationnels) ou forcés.
Gravitationnel
Si la circulation naturelle est installée, le liquide de refroidissement chauffé est accéléré. Il doit y avoir suffisamment de force pour qu'il traverse tout le contour. Pour ce faire, un surpresseur est installé dans le système après le générateur de chaleur. Il s'agit d'une section de tuyau verticale. En descendant, le liquide de refroidissement prend de la vitesse sous l'influence de sa gravité.
Pour maintenir la vitesse acquise lors de la descente, la canalisation est posée avec une pente de 3%. Avec un tel angle, le liquide de refroidissement se déplacera vers le bas sans obstacles.
Forcé
Pour créer une circulation forcée, il est nécessaire d'installer des pompes spéciales sur le tuyau de retour. Grâce à l'installation d'un tel système, le mouvement de l'eau le long d'un parcours de toute complexité est assuré. Mais la circulation dépend directement de l'approvisionnement en électricité. S'il n'y a pas d'alimentation, le système cesse de fonctionner.
Routage monotube et bitube
Selon la manière dont le liquide de refroidissement est fourni aux radiateurs, la distribution des tuyaux de chauffage est divisée en monotube et bitube.
Une connexion de tuyau

Un système à un seul tuyau est un seul tuyau qui forme une boucle fermée. Les appareils de chauffage de toutes les pièces y sont connectés. Les avantages de cette méthode résident dans la possibilité d'organiser le mouvement naturel du liquide de refroidissement à travers les tuyaux. Il n'est pas nécessaire d'acheter une pompe circulaire supplémentaire pour le fonctionnement.
De plus, les avantages d'un système monotube incluent :
- la possibilité d'économiser de l'argent, car la connexion nécessite un minimum de matériaux;
- le schéma de câblage est très simple, même les débutants peuvent y faire face;
- calculs simples de la charge sur les éléments.
Mais un tel système a un gros inconvénient. Tous les appareils de chauffage situés plus loin de la chaudière chauffent moins bien. Cela se produit parce que pendant le mouvement du liquide de refroidissement, sa température diminue. Les pièces d'un appartement ou d'une maison plus éloignées de la chaudière ne seront pas suffisamment chauffées.
Le problème peut être résolu des manières suivantes :
- Dans les pièces du fond, augmentez le nombre de sections de radiateurs.
- Intégrez des vannes dans chaque radiateur qui réguleront la pression.
- Insérez une pompe dans le système, ce qui facilitera le mouvement rapide de l'eau et sa répartition uniforme sur tous les appareils.
Un système de distribution à tuyau unique est une bonne option pour chauffer une maison privée jusqu'à 100 mètres carrés. Cela ne nécessite pas d'appareils supplémentaires.
Raccordement à deux tuyaux

Le système de raccordement à deux tuyaux implique le raccordement d'appareils aux tuyaux de retour et d'alimentation. Cela conduit à une augmentation significative des coûts des matériaux. Un point positif est la possibilité de régler la température séparément sur chaque radiateur.
La disposition verticale la plus couramment utilisée du système de chauffage d'un immeuble d'appartements. Un système à deux tuyaux pour une maison privée est monté comme suit:
- Les tuyaux sont installés au niveau du sol au premier étage. La canalisation elle-même doit démarrer dans la chaufferie à côté de la chaudière.
- Des tuyaux verticaux sont installés. Grâce à eux, l'eau sera fournie aux appareils de chauffage;
- De chaque radiateur, il y a un tuyau de dérivation pour le liquide de refroidissement.
Lors de l'installation d'un système à deux tuyaux, il faut garder à l'esprit qu'avec le câblage inférieur, il est nécessaire d'organiser une sortie d'air régulière du système. Pour cela, des unités supplémentaires et un vase d'expansion sont montés.
Distribution de chauffage radial

Le système radiant est utilisé dans les bâtiments à plusieurs étages pour l'organisation du chauffage des appartements. Dans cette situation, un compteur de chaleur est installé dans chaque appartement. Le câblage de faisceau vous permet d'installer des compteurs de chaleur séparés avec une sortie de canalisation. Grâce à cela, les résidents ne peuvent prendre en compte et payer que la chaleur qu'ils ont consommée.
Dans les maisons individuelles, le schéma est applicable à la répartition des canalisations sur les étages, ce qui réduit les pertes de chaleur.
Choix du mode de distribution du chauffage
Lors du choix d'un système de chauffage, vous devez faire attention aux nuances suivantes:
- Le système doit être aussi automatisé que possible pour assurer le niveau de sécurité requis.
- Résistance à l'usure des éléments - il est nécessaire de choisir l'équipement en tenant compte de sa fiabilité de fonctionnement.
- Budgétaire : les systèmes monotubes coûtent 1,5 fois moins cher que les systèmes bitubes.
Il est important de prendre en compte la hauteur de la maison, la superficie de la pièce, la stabilité de l'alimentation électrique. Un rôle important est joué par le but de la maison. S'il est destiné à habiter toute l'année, il est recommandé d'installer un câblage à circulation forcée.
montage de bricolage

L'installation d'un système de chauffage est l'un des travaux les plus coûteux dans la construction d'une maison privée. Par conséquent, de nombreux propriétaires essaient de faire le câblage eux-mêmes.
Tout travail avec des systèmes de chauffage doit commencer par la création d'un projet. Il prescrit la puissance de la chaudière, est lié à la disposition du bâtiment, à la superficie, à la hauteur sous plafond.
Le type de carburant à utiliser dans le système doit être pris en compte. Il peut s'agir de gaz, d'électricité, de bois ou de gazole.
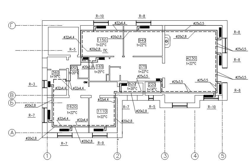
Dessin des systèmes de câblage
Après avoir élaboré le projet, un schéma de disposition des canalisations est dessiné. Le dessin contient le nombre de radiateurs, leur emplacement, le type d'appareils de chauffage utilisés. Le dessin est très important pour commencer, car il permet de représenter visuellement le système et de planifier la quantité de matériaux requise.
Erreurs d'installation à faire soi-même

Lors de l'installation d'un système de chauffage, les calculs préliminaires jouent un rôle important. Le routage des tuyaux de chauffage dans une maison privée, posé avec des défauts, peut entraîner des coûts financiers importants pour la correction. Lors du choix d'une chaudière à gaz ou électrique, vous devez d'abord vous concentrer sur la surface de la pièce. Mais ce n'est pas assez. Si vous installez une chaudière dont le niveau de puissance dépassera les paramètres requis, des coûts d'équipement supplémentaires seront nécessaires.
Les principales erreurs que les débutants commettent lors de l'installation d'un système de chauffage de leurs propres mains:
- Les tuyaux sont mal sélectionnés. Si des tuyaux de diamètres différents sont utilisés, cela entraînera une violation de la pression au niveau du joint.
- Mauvais choix de système de chauffage. C'est un point important qui est calculé pour chaque projet individuellement. Le schéma peut être commandé auprès des concepteurs.
- La puissance du radiateur doit correspondre strictement à la surface de la pièce. Il est recommandé de faire des calculs séparément pour chaque pièce.
Souvent, les débutants sont confrontés à la difficulté de choisir une pompe de circulation. Il existe des programmes qui calculent la résistance créée par les appareils. Le chauffage ne fonctionnera pas si la pression de la pompe est inférieure à la résistance.
L'organisation du chauffage dans votre logement est un ensemble de mesures physiquement et financièrement difficiles. Pour éviter des dépenses inutiles, vous devez planifier soigneusement chaque étape.












