Quiconque décide de construire sa propre maison, son chalet d'été ou un simple terrain pour gérer une économie personnelle est obligé de faire face à la question du raccordement aux réseaux électriques centralisés. Cela peut être fait pendant la construction d'une installation résidentielle spécifique, ainsi qu'après l'achèvement de la construction. Pour comprendre l'essence des procédures à venir, il est important de comprendre les tâches résolues lors de la préparation du projet et la composition des documents qui y sont inclus.
- Pourquoi avez-vous besoin d'un projet
- Projet d'alimentation électrique typique pour une maison privée
- Exigences pour un projet d'alimentation électrique d'une maison privée
- Circuit électrique de la maison
- Conception de réseau électrique
- Choisir une méthode de montage
- Calcul de la charge totale
- Répartition des charges par groupes
- Choix du câblage
Pourquoi avez-vous besoin d'un projet

L'objectif principal d'un projet typique d'électricien dans une maison privée est de déterminer les données calculées sur les caractéristiques de charge du réseau interne. Cela prend en compte les caractéristiques individuelles de la maison de campagne érigée ou du chalet à deux étages. Selon la législation de la Fédération de Russie, un projet de raccordement électrique à une maison privée n'est pas requis si la consommation électrique déclarée par son propriétaire ne dépasse pas 15 kW (en tenant compte de l'existant).
Lors de la soumission d'une demande à Energosbyt pour un raccordement technologique typique, il suffit de fournir un calcul de la consommation électrique totale et un schéma unifilaire de l'alimentation électrique locale. Cependant, certains représentants régionaux des entreprises de fourniture d'énergie indiquent dans le contrat qu'une conception électrique est nécessaire. Dans ce cas, il est supposé qu'il doit fournir un schéma de câblage avec la désignation de consommateurs spécifiques et des données précises sur le dispositif de mesure.
Projet d'alimentation électrique typique pour une maison privée

Le projet d'alimentation électrique d'une maison privée comprend les documents obligatoires suivants :
- Schéma de câblage unifilaire (y compris le tableau de distribution).
- Plan de la maison avec désignation des emplacements des équipements, ainsi qu'un schéma de l'emplacement des prises et des luminaires.
- Schéma des robinets à l'extérieur de la maison, équipés pour le raccordement d'appareils extérieurs ou de dépendances extérieures.
- Données estimées pour la boucle de mise à la terre.
- Plan d'organisation du dispositif de protection contre la foudre.
- Spécifications pour les équipements de protection et de contrôle (appareils).
- Permis confirmant la légalité des travaux effectués par l'organisme de conception choisi par l'entrepreneur.
Le dernier échantillon du document de travail est nécessaire si l'approbation du projet avec l'organisme de distribution d'électricité est requise.
Exigences pour le projet d'alimentation électrique d'une maison privée

Avant de préparer un projet de datcha par exemple, vous devrez tout d'abord obtenir des spécifications techniques d'Energosbyt pour son élaboration. Ils prescrivent toute la liste des problèmes liés à la disposition du câblage électrique. Les éléments suivants sont inclus sans faute :
- Plan de câblage pour la maison de campagne.
- Type et emplacement de l'installation du tableau.
- Liste des équipements à installer, dont un compteur électrique et des disjoncteurs.
- Répartition des consommateurs en groupes et autres problèmes.
L'UT précise également la puissance allouée à cette installation (pas plus de 15 kW).
Il est nécessaire de préparer un acte de bilan, dans lequel toute l'attention est portée sur la délimitation des domaines de responsabilité de l'organisme fournisseur et du consommateur privé.Il est établi sous la forme d'un accord conclu entre deux parties intéressées et approuvé après accord.
La présence de ce document permet :
- répartir les responsabilités de chacune des parties pour l'entretien de « leur » tronçon du réseau électrique ;
- avoir une idée précise de qui est obligé d'effectuer les réparations en cas de dommage sur la ligne d'alimentation (câble d'alimentation par exemple) ;
- connecter les nouvelles installations aux réseaux électriques existants et en exploitation.
S'il n'est pas possible d'établir immédiatement la limite de responsabilité, elle est choisie le long du périmètre du mur extérieur d'une maison privée ou de la parcelle occupée par le propriétaire. D'un commun accord des parties, d'autres variantes de délimitation sont autorisées.
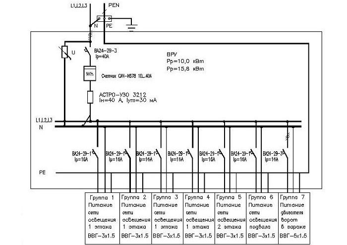
Circuit électrique de la maison

Dans le schéma de raccordement d'une maison à un réseau électrique monophasé, les points obligatoires suivants sont pris en compte:
- Le câble ou le fil CIP qui le remplace est connecté directement aux jeux de barres du tableau par l'intermédiaire d'un compteur électrique.
- Après cela, chaque groupe d'alimentation doit être connecté via un "propre" dispositif automatique linéaire calculé à l'avance en fonction du réglage actuel.
- Le zéro de travail et le conducteur de protection de chaque groupe linéaire, contrairement aux conducteurs de phase, ne doivent pas être intervertis.
Le noyau zéro ne « casse » comme une phase que s'il y a un RCD dans la branche linéaire, qui peut être installé à la fois sur un groupe et sur leur combinaison. De plus, les conducteurs de la machine de groupe sont posés en direction des boîtes de jonction. D'eux, le câblage électrique est séparé des utilisateurs finaux (prises de courant et éclairages avec interrupteurs).
Lors de la préparation d'un projet électrique, la structure du bâtiment doit être prise en compte, dont dépend la méthode de câblage choisie.
Dans les maisons avec un grand nombre de pièces, lors de l'établissement du schéma de câblage, les éléments suivants sont pris en compte:
- lors de la conception, il est pratique de diviser les consommateurs en groupes distincts : un pour chaque pièce et pour les dépendances de service ;
- dans l'exemple d'un projet d'alimentation électrique d'une maison individuelle, sont pris en compte les dérivations individuelles avec une machine automatique, destinées à protéger une machine à laver ou un four ;
- lors de la préparation des données de conception, l'exigence d'une répartition uniforme des charges entre les groupes est observée: en raison d'un nombre important de consommateurs, ils chargent souvent le réseau de manière inégale.
En tenant compte de toutes ces recommandations, vous pouvez passer à la partie pratique du projet.
Conception de réseau électrique

Sur la base du schéma envisagé pour une maison privée, lors de la préparation d'un projet de travail d'un réseau électrique, il sera nécessaire de calculer le nombre requis de groupes, puis de répartir les consommateurs. De plus, il est important de décider des méthodes d'installation de la ligne et de calculer la charge possible sur tous les appareils qui y sont connectés.
Choisir une méthode de montage
Les procédures préparatoires commencent par le choix de la manière dont le câblage électrique est censé être posé. Pour une maison privée en bois, par exemple, le plus approprié est un joint extérieur, dans lequel il s'étend le long de la surface des murs. Si vous le souhaitez, il peut être caché dans des goulottes de câbles en plastique pré-préparées.
Il est nécessaire de recourir à la pose cachée dans des maisons privées construites en briques, blocs de mousse et matériaux similaires non combustibles.
Calcul de la charge totale
À l'étape suivante des travaux, il est nécessaire de calculer la charge totale de tous les consommateurs connectés au réseau, ce qui est très important pour leur répartition ultérieure en groupes. Pour ce faire, vous devez déterminer le nombre d'appareils et la puissance maximale consommée par chacun d'eux. Cet indicateur sera plus facile à trouver à partir du passeport, qui est attaché à l'un des produits ménagers.
En additionnant tous les indicateurs et en obtenant la puissance totale consommée par toutes les charges connectées, il est possible de connaître le courant maximal dans le circuit.Pour le calculer, vous devez utiliser le rapport dérivé de manière pratique, selon lequel une puissance de 1 kW à une tension de 220 Volts correspond à un courant de 4,5 Ampères.
Répartition des charges par groupes

La répartition des consommateurs est effectuée en tenant compte du fait que la puissance totale d'un groupe de lignes de sortie et de dispositifs d'éclairage ne doit pas dépasser 16 ampères. Sur la base de cette exigence, il est nécessaire de répartir les charges existantes sur des groupes individuels.
Pour connecter et entretenir des charges puissantes comme un four électrique, un groupe de consommateurs devra installer une machine automatique d'une puissance nominale de 25 ampères.
La répartition en groupes se fait en tenant compte de leur répartition entre les pièces et dépend de la puissance d'une charge particulière. PUE recommande de séparer les lignes d'éclairage de groupe des prises de courant, ce qui est important pour les bâtiments avec un grand nombre de pièces.
Choix du câblage
Avant de poser un câblage électrique dans une maison privée, il est nécessaire de calculer soigneusement la section des conducteurs qui y sont inclus. La durabilité et la sécurité incendie de l'ensemble du système d'alimentation dépendent de l'exactitude de cette procédure.
Selon la clause 7.1.34 du PUE, depuis 2001, seuls les câbles et fils en cuivre sont autorisés à être utilisés dans les bâtiments résidentiels en bois et autres bâtiments.
La section des conducteurs est censée être choisie en tenant compte de la charge calculée sur tous les types de lignes de groupe. Pour éviter des calculs inutiles et simplifier le choix de cet indicateur, ils partent généralement du courant nominal du groupe AB.
Le type de câblage (fermé ou ouvert) est également pris en compte, car pour des conducteurs posés de différentes manières, les conditions de dissipation thermique seront différentes. Dans les deux cas, pour les lignes d'éclairage de groupe, la section transversale choisie ne dépasse pas 1,5 mm carré et pour les lignes électriques (prise de courant) - au moins 2,5 mètres carrés. mm.









Et quel est le programme dans lequel le projet est dessiné ?