Les dispositions des normes législatives ne précisent pas spécifiquement les points concernant la nécessité de préparer un projet type de câblage électrique dans les appartements avant d'effectuer des travaux de réparation. Les lois indiquent seulement que le projet d'alimentation électrique de l'appartement est en cours d'élaboration en cas de modernisation du réseau, compte tenu de l'introduction de modifications sérieuses dans son schéma. Cette interprétation permet au propriétaire de l'appartement de décider à sa discrétion de la préparation des matériaux de conception pour l'alimentation électrique.
- Composition du projet pour l'alimentation électrique des nouveaux appartements
- Conditions techniques, capacité allouée, état des comptes de régularisation
- Mise en place d'un standard interne et répartition des consommateurs par groupes
- Choix des disjoncteurs et du type de câble
- Installation électrique dans l'appartement
- Analyse d'une option d'alimentation simplifiée
- Caractéristiques des projets d'appartements d'une et trois pièces
Composition du projet pour l'alimentation électrique des nouveaux appartements

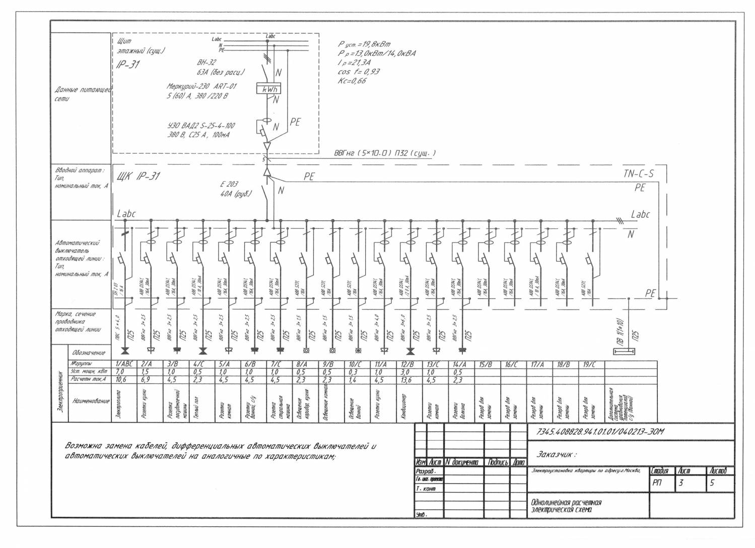
Le projet électrique d'un appartement dans de nouveaux bâtiments résidentiels comprend l'ensemble de documents suivant :
- titre ou page de titre ;
- la délimitation de la propriété et de la responsabilité opérationnelle ;
- des données sur la structure du bâtiment et une note explicative qui s'y rattachent ;
- schéma électrique unifilaire;
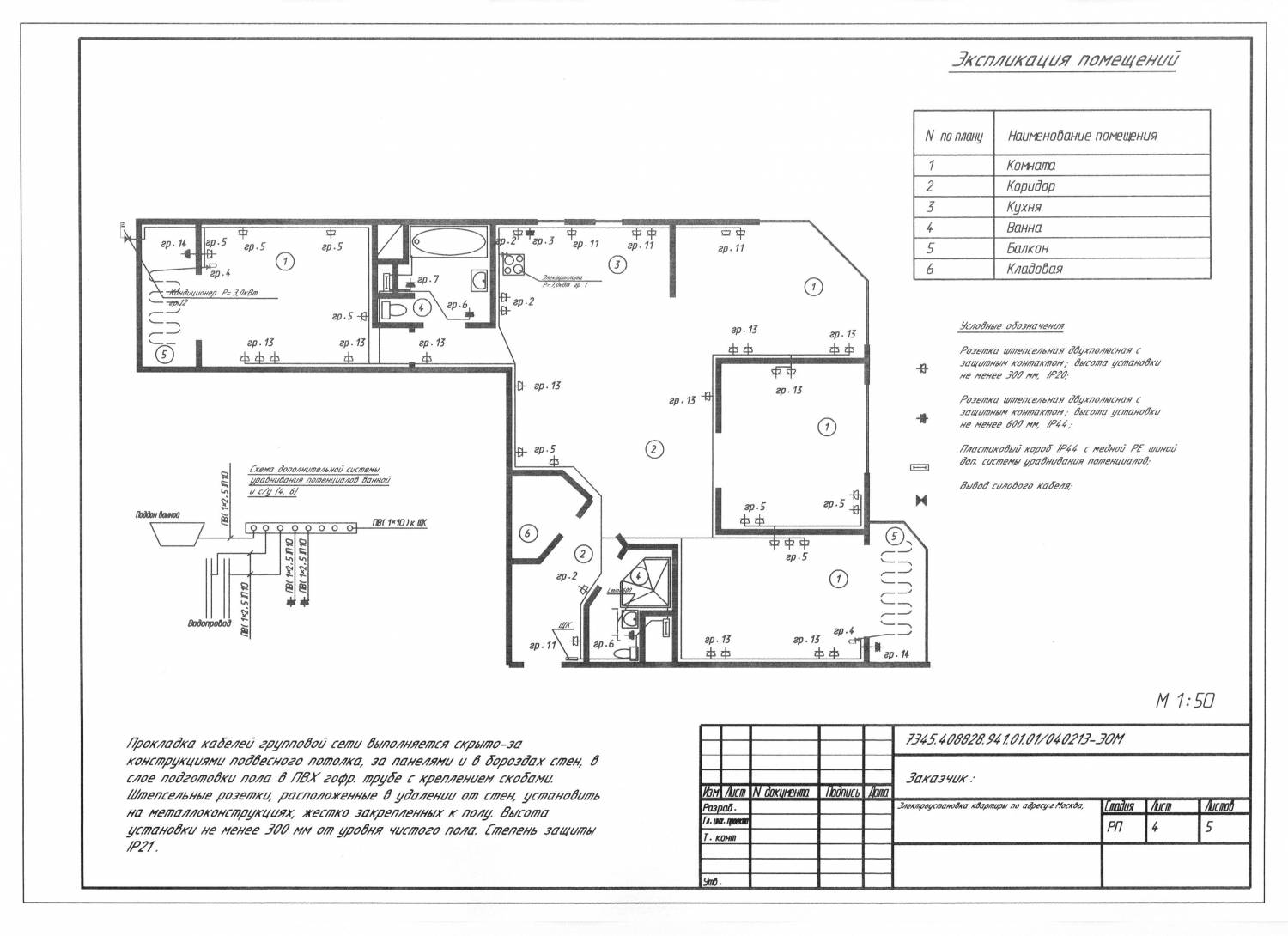
- plan du réseau d'éclairage et partie puissance (prise);
- liste des équipements et composants électriques requis;
- circuit d'égalisation de potentiel.
Tous les éléments de travail du projet d'électricien dans l'appartement sont établis dans le respect obligatoire des exigences de l'ESKD. Au cours de l'élaboration, toutes les informations concernant les autorités de tutelle approuvant le projet et les exécuteurs qui réalisent la partie technique des activités du programme sont enregistrées.
Conditions techniques, capacité allouée, état des comptes de régularisation
- disposition des conducteurs de câbles dans tout l'appartement;
- emplacement d'installation et type d'armoire électrique (blindage);
- une liste des équipements qui y sont installés, y compris un compteur électrique et des disjoncteurs ;
- répartition des parties d'alimentation et d'éclairage du réseau électrique en groupes et autres problèmes.
L'UT précise également la puissance allouée à cette installation, qui dans le cas général ne doit pas dépasser 15 kW.
Lors de la préparation d'une déclaration de propriété du bilan, l'accent est mis sur une délimitation claire des domaines de responsabilité de l'organisation fournisseur et du consommateur lui-même. Elle est documentée par la conclusion d'un accord entre les parties et sa confirmation législative ultérieure. La nécessité d'une telle division et de la rédaction d'un acte s'explique par les raisons suivantes :
- après la signature de l'acte, chacune des parties a une idée de qui dessert une certaine section des réseaux électriques ;
- en cas d'endommagement de la ligne, il sera clair qui devra payer pour sa remise en état ;
- l'acte de délimitation sert de base au raccordement des installations nouvellement mises en service aux réseaux électriques.
Si, pour un certain nombre de raisons, il n'est pas possible d'établir la limite de responsabilité, elle est sélectionnée le long du contour du mur extérieur d'une maison à panneaux ou d'une autre structure. D'un commun accord entre les deux parties, d'autres options de résolution du problème sont autorisées.
Mise en place d'un standard interne et répartition des consommateurs par groupes

Dans les conditions techniques pour la conception de l'électricité, le lieu d'installation du bouclier dans la pièce à vivre (dans le couloir ou dans le couloir) est également stipulé. Le choix de telle ou telle option dépend des préférences de son propriétaire et de la commodité de prendre des lectures à partir du compteur intégré. Lors de la préparation des données sur le schéma de câblage électrique d'un appartement, ce problème doit être pensé en premier lieu, afin que vous n'ayez pas à déplacer plus tard l'armoire avec le compteur électrique.
Lors du choix d'une zone de placement, tenez compte des considérations suivantes :
- si possible, l'endroit est choisi dans une niche dans le mur;
- le blindage doit être situé près du chemin du câble d'alimentation ;
- la hauteur de l'emplacement est sélectionnée en tenant compte de la commodité de prendre des lectures et de travailler avec l'équipement.
Après avoir résolu ce problème, il faudra s'attaquer à la division des consommateurs en groupes, qui comprend deux étapes : la panne des consommateurs d'énergie (prises) et la distribution des appareils d'éclairage avec des interrupteurs installés dans leurs circuits. Pour chaque type d'accessoires de câblage et de consommateurs électriques, cette distribution est prévue séparément.
Choix des disjoncteurs et du type de câble

Tout d'abord, cette procédure est effectuée pour les prises cassées en calculant le câblage pour le courant consommé par les branches individuelles. Ils partent généralement des recommandations pratiques suivantes :
- la puissance totale d'un groupe de prises ne doit pas dépasser 4,3 kW ;
- cela permet de l'alimenter avec un câble en cuivre tripolaire avec une section de chacun des conducteurs de 2,5 mm2 ;
- pour protéger une telle ligne, un disjoncteur de 25 ampères est requis.
Pour connecter le poêle électrique, vous devrez poser une ligne de câble séparée 3 × 6 mm2, si sa puissance ne dépasse pas 7,3 kW. Pour entretenir cette branche de l'alimentation, vous devrez choisir AB avec une coupure appropriée de 40 ampères.
Le type de prises sélectionné avec une indication du groupe et le courant admissible est dessiné dans le schéma de câblage. Des enregistrements sont effectués sur le plan concernant le disjoncteur correspondant à chaque groupe (groupe 1 - 25 Ampères - câble 3 × 2,5 mm2 - fil VVGng). Avec un petit nombre de prises dans différentes pièces et en les regroupant en un seul groupe, une boîte de jonction supplémentaire devra être prévue en bordure des locaux.
Installation électrique dans l'appartement

Une fois le câblage de la maison calculé et le projet finalement approuvé, vous pouvez procéder à l'installation du réseau électrique. Pour ce faire, vous devez effectuer les opérations suivantes :
- Conclure une entente avec une entreprise spécialisée dans les travaux d'installation électrique, qui précise tous les détails du projet.
- Des experts installent les lignes et les équipements installés selon le plan du bâtiment et le schéma de câblage.
- Le système est testé dans le mode de fonctionnement et la réception ultérieure des travaux par le représentant de la société de gestion.
Si le propriétaire de l'appartement maîtrise la technique des travaux électriques, il peut économiser sur cette partie du projet en les réalisant lui-même.
Analyse d'une option d'alimentation simplifiée
Jusqu'à présent, des cas de projet d'extension d'alimentation électrique ont été examinés, selon lesquels tous les facteurs de conception et techniques caractéristiques des nouveaux bâtiments, par exemple, ont été pris en compte. Il sera plus facile de comprendre comment calculer le câblage dans une version abrégée si vous considérez l'exemple d'un appartement dans une ancienne maison de ville constituée de structures monolithiques. L'exigence de préparer le projet peut être causée par l'état de vétusté des réseaux électriques et la volonté des représentants de la société de gestion de maîtriser l'ensemble du processus de sa modernisation.
Dans ce cas, lors de la préparation du devis, il n'est pas nécessaire de prendre en compte les coûts de main-d'œuvre pour le refendage des murs, car il est préférable d'utiliser une méthode de pose ouverte.
Les opérations associées au calcul du câblage seront également considérablement simplifiées, car la liste des travaux d'installation et la quantité de consommables seront réduites.Dans cette situation, il est possible de faire des économies sur les dispositifs de protection, hors RCD, obligatoire dans les locaux vétustes.
Caractéristiques des projets d'appartements d'une et trois pièces

Le schéma de câblage dans un appartement d'une pièce est la solution de conception la plus simple qui n'a pas besoin d'être décomposée en groupes de consommateurs. Dans ce cas, tous les calculs liés à leur consommation électrique et au choix du disjoncteur requis sont simplifiés. Le câblage électrique dans les appartements d'une pièce est complété par une ligne électrique séparée s'il y a une machine à laver dans la cuisine ou la salle de bain.
Lors de la préparation du devis, la structure du bâtiment (murs monolithiques ou en briques) doit être prise en compte, ce qui détermine les coûts de main-d'œuvre pour la mise en place d'un joint caché.
Dans un appartement de trois pièces, lors de l'élaboration d'un plan de câblage, il est recommandé de prendre en compte les points suivants:
il est plus pratique de diviser les consommateurs en 4 groupes : un pour une chambre et un autre qui combine un couloir, une cuisine et une salle de bain avec toilettes ;
dans l'exemple d'un projet d'alimentation électrique d'un appartement, une ligne distincte avec une machine automatique desservant une machine à laver et/ou un four doit être prise en compte ;
Lors de la préparation d'un projet, il est important de calculer correctement la répartition des charges pour les groupes individuels: en raison du grand nombre de consommateurs, ils peuvent charger le réseau de manière inégale.
Il est plus pratique de classer le schéma de câblage dans les appartements de 2 pièces comme une option intermédiaire entre les deux déjà envisagées.
Après s'être familiarisé avec les principaux points de préparation d'un projet dans des appartements de différentes dimensions, chaque utilisateur pourra commencer à préparer sa mise en œuvre. Il s'agit de l'acquisition des appareils et consommables nécessaires selon le devis et de l'embauche de spécialistes en installation de câblage électrique.









