Une installation correcte des prises permet d'assurer un emplacement confortable des appareils d'éclairage portables et des appareils électroménagers. Pour mener à bien les travaux, vous devez connaître les principes/règles de sécurité et planifier correctement l'emplacement des points de vente.
Conditions importantes pour une installation sûre

SNiP, GOST et PUE réglementent un certain nombre de règles à respecter lors de l'exécution de travaux électriques.
- Avant d'installer des interrupteurs et des prises, conformément aux règles, vous devez éteindre la machine d'entrée générale pour toute la maison ou l'appartement. Ainsi, le maître coupe à la fois la phase et le zéro, ce qui offre une plus grande sécurité.
- Avant de commencer l'installation, à l'aide de l'indicateur, vérifiez l'absence de tension de 220 V.
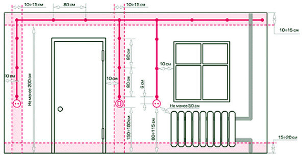
- Les points de restauration dans les chambres sont situés à 60 cm du sol (minimum). S'il y a des enfants de tout âge dans la maison, la hauteur d'installation passe à 1,8 m. Dans les lieux de restauration publique, la prise est placée à 1,3 m du sol.
- Pour les plinthes avec un revêtement aux normes européennes, il est permis de maintenir une hauteur de 30 cm à partir du fond de la pièce.
- Il est déconseillé d'effectuer des travaux d'installation et de réaliser des prises de courant à moins de 50 cm des équipements mis à la terre dans les salles de bain (radiateurs, robinetterie, éviers, tuyaux PVC).
- Dans les salles de plomberie, le câblage doit uniquement être caché.
- Selon les règles, pour chaque 8-10 m2 d'une pièce, il doit y avoir un élément d'alimentation électrique.
- Les interrupteurs sont montés à au moins 90 cm du sol et à 10 cm du cadre de la porte.
- Si des travaux sont effectués dans la cuisine, les prises et les interrupteurs sont situés à au moins 50 cm de la conduite de gaz.

La violation des normes et des exigences établies menace le capitaine de créer des situations d'urgence.
Types de prises
Pour équiper une ligne électrique monophasée d'une tension de 220, les types de structures suivants sont utilisés:
- Avec contact de terre latéral (C 2a). Leur conception suppose la présence d'une borne supplémentaire à laquelle est connecté le noyau vert. Le plus souvent, l'installation d'une prise de ce type est réalisée pour des appareils électroménagers puissants (cuisinière électrique, chaudière).
- Sans mise à la terre (C 1a). Prises conventionnelles conçues pour un courant de fonctionnement maximal de 10 A. Elles sont capables de supporter des tensions jusqu'à 250 V et n'ont pas besoin d'être mises à la terre.
- Appareils avec cosse de mise à la terre. Il se monte en fonction du type de prise à connecter. De tels éléments ont la norme C 3a.
De plus, les prises sont classées en types selon le type de construction :
- Externe (supérieur). Conçu pour l'auto-assemblage sur les murs des cabanes en bois, panneaux. Si le maître ne sait pas comment installer une prise de courant dans de tels bâtiments, il vaut la peine de suivre les règles de sécurité incendie. Il est strictement interdit de couper des points de nourriture dans un arbre.
- Intégré (interne). Ils sont utilisés pour l'installation dans des murs en monolithe, brique, béton mousse, cloison sèche.
De plus, les prises sont divisées en types en fonction de la méthode de fixation des fils:
- Avec bornes à ressort. Les fils dénudés sont insérés dans un trou technique spécial et fixés automatiquement.
- Avec une vis. Les fils sont pressés contre les bornes en serrant une petite attache.
Il existe également des mini-colonnes au sol avec lesquelles vous pouvez produire de 2 à 6 prises de courant en même temps. Ils peuvent être ajoutés si vous devez connecter un grand nombre d'équipements en un seul endroit.
Avant de faire une prise, il est important de considérer que l'installation d'une prise de courant sans mise à la terre peut être réalisée à l'aide d'un câble double à deux fils (avec deux fils à l'intérieur). L'installation d'un élément mis à la terre est effectuée à l'aide de câbles à trois conducteurs (triple). Le fil jaune est destiné à relier les bornes souhaitées à la terre de l'appartement.
Technologie d'installation
Avant d'installer les prises, vous devez préparer tous les outils nécessaires :
- tournevis (plat et Phillips);
- perforateur et une couronne pour lui 70 mm;
- rainureuse murale ou meuleuse;
- pince coupante ou couteau tranchant pour retirer la gaine du câble ;
- niveau du bâtiment pour l'installation de points de vente ;
- ruban à mesurer et marqueur;
- marteau et burin;
- couteau à mastic;
- récipients pour la préparation de mortier (albâtre, gypse, mastic).
Il est préférable d'effectuer un travail sale et bruyant sur l'écaillage des murs en semaine de 10h00 à 17h00. De cette façon, vous pouvez minimiser les conflits possibles avec les voisins. S'il y a de jeunes enfants à proximité, faites une pause déjeuner.
Les prises sont installées de l'une des manières suivantes - aérienne ou intégrée.
Installation à l'extérieur

Pour installer une prise sur un mur en bois, vous devez respecter le schéma de travail suivant:
- A l'aide d'une goulotte, un câble électrique est connecté à l'emplacement de la future prise électrique. Il est important de couper sa longueur avec une certaine marge pour l'installation.
- Vous devez fixer une boîte de prise au mur sur un panneau spécial à l'aide de vis autotaraudeuses.
- Le panneau de couverture de la structure est retiré et connecté aux bornes souhaitées de l'âme du câble libérée de la tresse. Ici, il convient de considérer le marquage: "L" signifie un fil de phase, "N" - zéro.
- À l'aide de cosses spéciales, le boîtier en polymère de la prise est vissé sur la prise installée. Pour éviter qu'il ne pince le câble d'alimentation, il faut casser la fenêtre technique sur le côté. Toute la structure est fixée avec une vis.
Il reste à fermer les fils le long du mur avec un couvercle du chemin de câbles.
Installation à l'intérieur

Pour installer la prise dans le mur, vous devez d'abord préparer une prise pour cela : meuler les murs et former un évidement dans la cloison. Avant de commencer les travaux, des marquages sont appliqués sur les murs si la prise de courant est installée dans un nouvel endroit. Étapes des travaux ultérieurs :
- Les canaux pour le câble sont fabriqués strictement le long des lignes décrites. Tout d'abord, des coupes sont formées des deux côtés, puis les restes de béton sont éliminés avec un marteau et un ciseau.
- Le nid pour le verre est réalisé avec un perforateur avec une couronne. Les restes du monolithe sont à nouveau assommés, en parallèle en essayant l'élément en profondeur. Il ne doit pas dépasser du plan du mur.
- Un câble d'alimentation est tiré le long du stroboscope fini et son extrémité est insérée dans les connecteurs techniques du verre, faisant ressortir l'extrémité de 10-15 cm.Ceci avec une marge devrait suffire pour la connexion.
- À l'aide d'une solution d'albâtre, un verre est monté dans le nid, contrôlant le niveau de sa saillie au-dessus du plan du mur. Tous les espaces autour du verre sont fermés avec du mortier, nivelant la surface de la cloison. L'albâtre sèche pendant 20-30 minutes. Mastic et gypse plus longtemps (jusqu'à une journée, selon la quantité de mortier utilisée).
- Dégagez le câble d'alimentation de la tresse de 10 cm, et chaque fil dénudé (rouge/marron, bleu/blanc, jaune/jaune-vert) de 1 cm.
- Ils sont raccordés aux bornes de la prise selon les phases. Vers zéro - bleu ou blanc (selon le fabricant). À la phase - rouge (marron). Au sol - vert (jaune-vert).
- Insérez la douille dans le verre et fixez-la à l'aide de pieds coulissants. Il est également important de contrôler la régularité de l'élément en niveau. Sinon, le point d'alimentation sera faussé.
- Il reste à installer le panneau extérieur et le cadre sur la vis.
Il est très facile de brancher la prise dans la cloison sèche. Il a des clips de serrage spéciaux.La douille est insérée dans la douille. La base en plaques de plâtre est assez fragile, donc lorsque vous travaillez avec un perforateur, vous ne devez pas exercer trop de pression dessus.
Démontage de l'ancienne prise
Lors des réparations, il est souvent nécessaire de remplacer les anciens magasins d'alimentation par de nouveaux, en particulier à Khrouchtchev ou à stalinka, maisons à panneaux de l'ancien type. Parfois, ces prises sont encastrées dans le mur sans prise. Ici, le maître doit agir dans l'ordre suivant :
- Le courant est coupé au standard.
- Le panneau de prise est retiré en dévissant les attaches.
- À l'aide d'un tournevis, le maître déconnecte les fils des bornes et retire l'ancienne structure.
- Il est important de libérer une partie du câble d'alimentation afin de former librement une douille pour l'installation d'une nouvelle vitre.
- Sinon, toutes les actions sont effectuées par analogie avec l'installation d'une prise de courant interne (intégrée).
Si le câble d'alimentation est court, vous pouvez le rallonger. Toutes les connexions sont soigneusement isolées.
Comment faire la mise à la terre de vos propres mains

Parfois, vous devez faire vous-même la mise à la terre de la prise. Le travail s'effectue ainsi :
- Un câble à trois conducteurs part de la boîte de jonction générale ou du blindage le long des stroboscopes jusqu'à la zone désignée. La section de chaque fil doit être d'au moins 2,5 mm2.
- Le bornier doit être fixé sur un rail DIN spécial. La veine de la "terre" y sera connectée. La couleur du fil de terre est toujours verte ou jaune-vert.
- Les joints des fils lors de l'installation des prises sont bien isolés.
Une fois le travail terminé, il reste à réparer la prise de terre.
Installation de prises et interrupteurs dans une maison à panneaux

Si vous devez monter des prises électriques sur des murs en béton dans des maisons à panneaux, il est important de tenir compte du fait que les blocs monolithiques contiennent des renforts à l'intérieur. Par conséquent, il est préférable d'utiliser un détecteur de métaux lors de la poursuite. Il est interdit de faire des canaux dans les structures porteuses.
Pour visser une nouvelle prise à la place de l'ancienne, qui est connectée à la prise de courant de l'appartement voisin à travers le mur, les experts recommandent de procéder ainsi :
- Déplacez un peu l'emplacement du nouveau, et moussez ou enduisez la jonction avec les voisins. Leur point de restauration peut rester à son ancien emplacement.
- Étendez une autre prise de courant le long des stroboscopes à partir de celle existante.
- Acheminez le nouveau câble loin de la boîte de jonction pour le montage des prises.
- Branchez l'alimentation à la nouvelle prise de courant à partir du disjoncteur.
- Placez les verres à l'ancienne place sur une couche d'albâtre.
De la même manière, vous pouvez connecter la lumière dans la pièce, apporter le câblage aux interrupteurs.
Tous les travaux électriques doivent être effectués avec une extrême prudence. Si le maître se rend compte qu'il ne s'acquittera pas de la tâche, il est préférable d'installer un électricien avec l'aide d'un professionnel expérimenté autorisé à fournir ce type de services.















